EasyManua.ls Logo

Volvo Penta D5A - D5 A TA KC (1½-circuit) Cooling System Diagrams

Volvo Penta D5A
116 pages
Print Icon
To Next Page IconTo Next Page
To Next Page IconTo Next Page
To Previous Page IconTo Previous Page
To Previous Page IconTo Previous Page
Loading...
D5A TA KC (1½-circuit)
P0013713
1
2
3
4
5
6
7
8
Drain points HT-circuit
P0013714
D
D
Drain points LT-circuit
P0013715
D
D
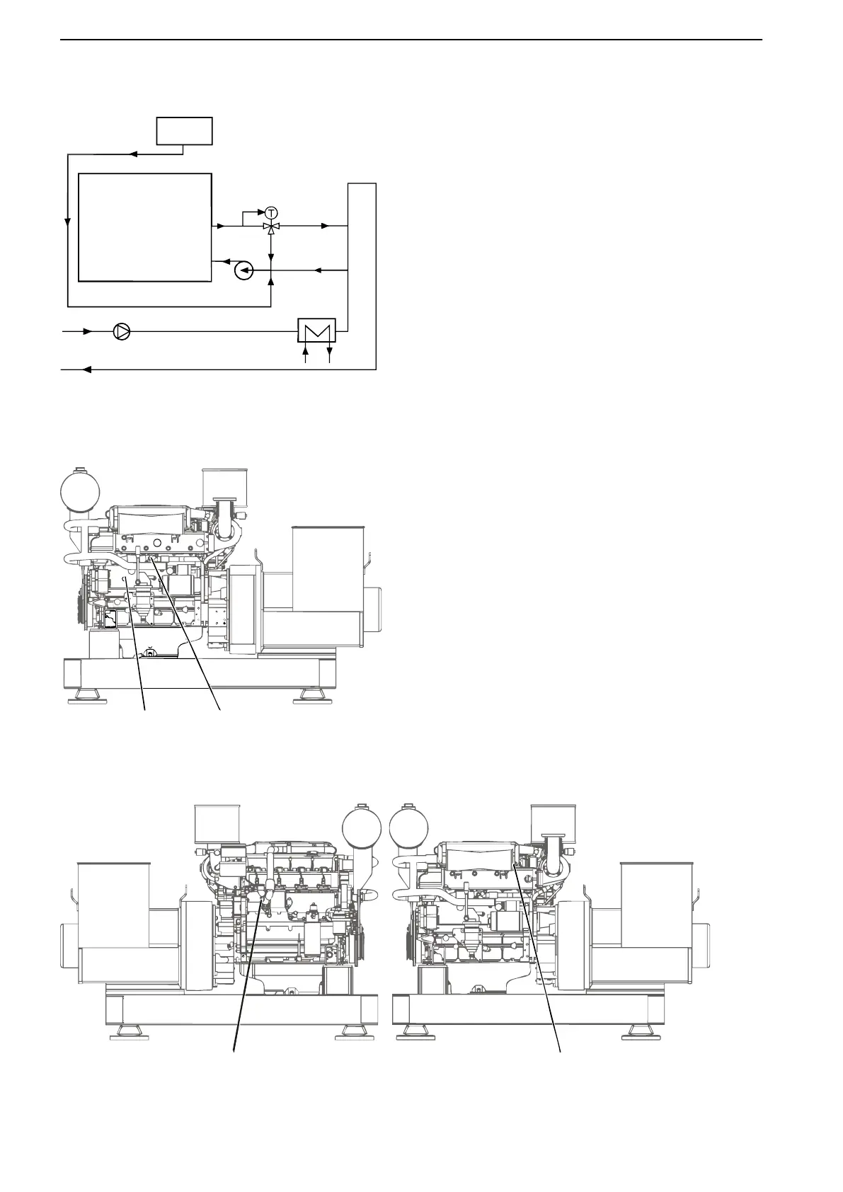
The engine cooling water is cooled by, e.g, a box
cooler, a grid cooler, or any other external heat
exchanger. When the coolant temperature in the HT-
circuit is too high the thermostat valve opens and
allows water of a lower temperature from the LT-
circuit to enter the HT-circuit.
The HT-circuit is cooling the cylinder liners, the
cylinder heads, and the lubrication oil.. An engine
driven HT-pump circulates the coolant through the
engine.
The LT-circuit is cooling the charge air. An engine
driven LT-pump circulates the coolant through the
CAC.
1 Engine
2 HT-pump
3 Thermostat valve
4 Expansion tank
5 LT-pump
6 Charge air cooler
7 HT-circuit
8 LT-circuit
Maintenance
72 47713337 03-2021 © AB VOLVO PENTA

Table of Contents

Related product manuals