EasyManua.ls Logo

WABCO ESC - Page 59

WABCO ESC
122 pages
Print Icon
To Next Page IconTo Next Page
To Next Page IconTo Next Page
To Previous Page IconTo Previous Page
To Previous Page IconTo Previous Page
Loading...
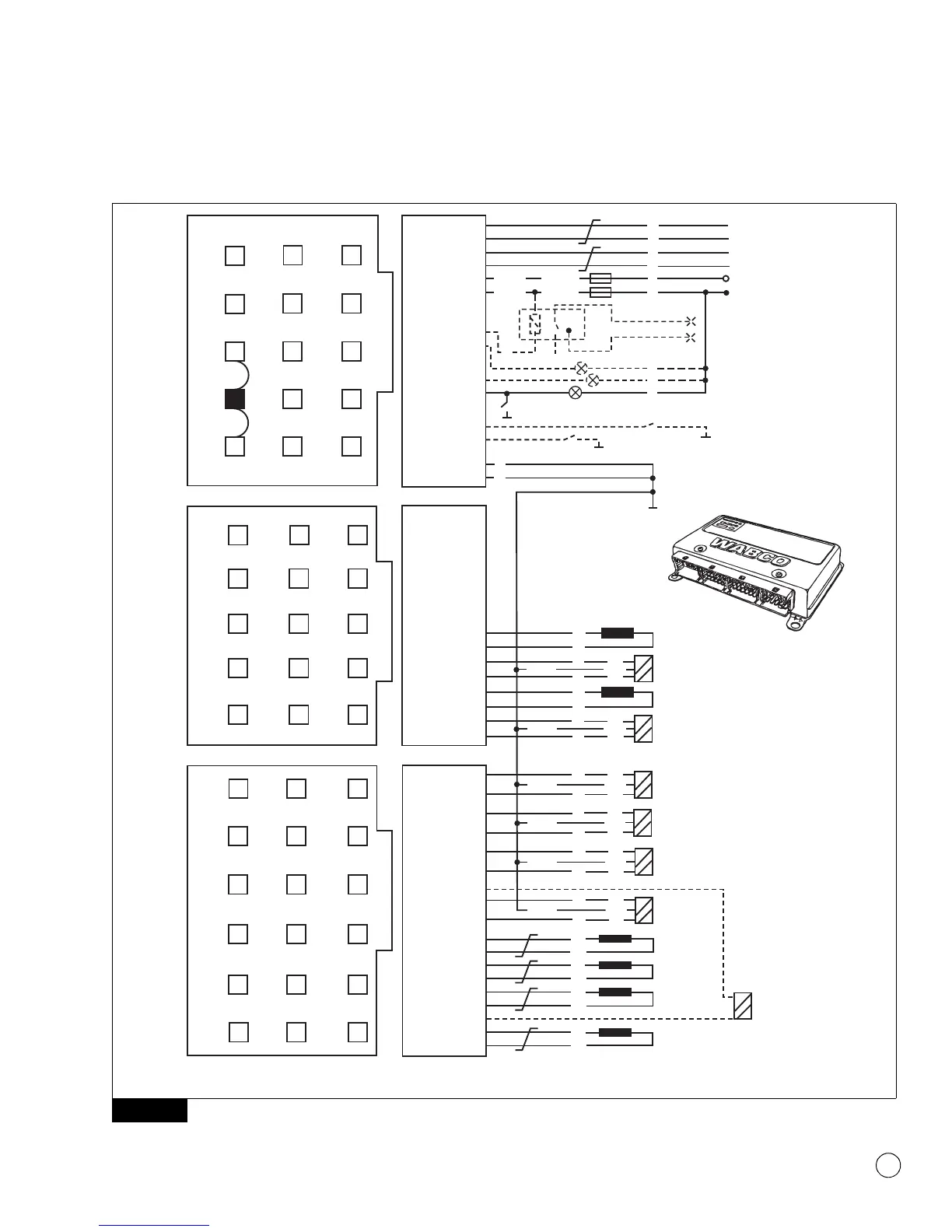
6 Wiring Diagrams and Connectors
55
WABCO Maintenance Manual MM-0112 (Revised 07-18)
6S/6M Universal ECU ABS Only with Optional Automatic Traction Control (ATC) (6S/4M and 4S/4M
Configurations are also available)
Figure 6.7
Figure 6.7
BACK VIEW OF HARNESS CONNECTOR
BACK VIEW OF HARNESS CONNECTOR
SAE
J1939
H
TR-WL
SAE
J1939
L
ATC
ABS ECU-
GND
BAT ECU+
JUMPER
SAE
J1587
A
SAE
J1587
B
ABS
LAMP
3RD
BRK
ATC
LAMP
3
2 1
6
5 4
9
8 7
11 10
15
14 13
14 PIN CONNECTOR
TRAILER INDICATOR LAMP
TP
1
3
J1939 L
J1939 H
10
11
8
15A AMP
10 AMP
14 AWG
BAT
IGN
J1587 B
J1587 A
TP
INLET
VALVE
INLET
VALVE
INLET
VALVE
OUTLET
VALVE
OUTLET
VALVE
OUTLET
VALVE
OUTLET
VALVE
INLET
VALVE
ABV-
SENSOR SENSOR SENSOR
SENSOR SENSOR SENSOR
3 2 1
6 5 4
9 8 7
12 11 10
15 14 13
SENSOR SENSOR ABV+
18 17 16
18 PIN CONNECTOR
SENSOR 10
SENSOR 13
SENSOR 11
SENSOR 14
SENSOR 12
SENSOR 15
ABV+ 16
SENSOR 17
SENSOR 18
INLET
VALVE
OUTLET
VALVE
INLET
VALVE
OUTLET
VALVE
INLET
VALVE
OUTLET
VALVE
ABV-
INLET
VALVE
OUTLET
VALVE
RIGHT FRONT
ABS VALVE
LEFT FRONT
ABS VALVE
LEFT REAR
ABS VALVE
RIGHT REAR
ABS VALVE
RIGHT FRONT
SENSOR
LEFT REAR
SENSOR
LEFT FRONT
SENSOR
RIGHT REAR
SENSOR
TP
1
4
3
6
2
5
AT C
SWITCH
IV
GND
OV
IV
GND
OV
10
13
11
14
12
15
17
18
IV
GND
OV
IV
GND
OV
8
9
REAR
ABV
1
4
3
6
2
5
7
BACK VIEW OF HARNESS CONNECTOR
INLET
VALVE
SENSOR
AUX 1
OUTLET
VALVE
SENSOR AUX 2
NOT
USED
TRL
ABV-
AUX 3
INLET
VALVE
SENSOR
AUX 4
OUTLET
VALVE
SENSOR
TRL
ABV+
3
2 1
6
5 4
9
8 7
12
11 10
15
14 13
15 PIN CONNECTOR
3RD AXLE
LEFT SENSOR
NOT USED 9
SENSOR 2
SENSOR 5
INLET 3
OUTLET 6
SENSOR 11
SENSOR 14
INLET 12
OUTLET 15
J1587 B
J1587 A
J1939 L
J1939 H
BATTERY
ECU+
RETARDER
TRAILER
INDICATOR
LAMP
ATC LAMP
TRACTOR
INDICATOR
LAMP
ATC SWITCH
ABS OFF
ROAD
ECU-
GND
10
11
1
3
8
7
14
2
13
15
6
5
4
9
4
9
GND*
ATC LAMP
TRACTOR INDICATOR LAMP
2
13
15
BLINK CODE
SWITCH
ABS OFF ROAD SWITCH
TP
8
9
TP
TP
7
14 AWG
16 AWG
16 AWG
16 AWG
16 AWG
16 AWG
16 AWG
86
30
87
14
87A
85
3RD AXLE
RIGHT SENSOR
3RD AXLE
LEFT ABS VALVE
3RD AXLE
RIGHT ABS VALVE
2
5
IV
GND
OV
IV
GND
OV
3
6
11
14
12
15
RETARDER
4004030i
X1
X3
X3
X2
X1
X2

Table of Contents

Related product manuals