EasyManua.ls Logo

WAM TE - Page 100

Default Icon
195 pages
Print Icon
To Next Page IconTo Next Page
To Next Page IconTo Next Page
To Previous Page IconTo Previous Page
To Previous Page IconTo Previous Page
Loading...
TP
1
CON.109.--.T.4L-NL
05.16
-
-
-
-
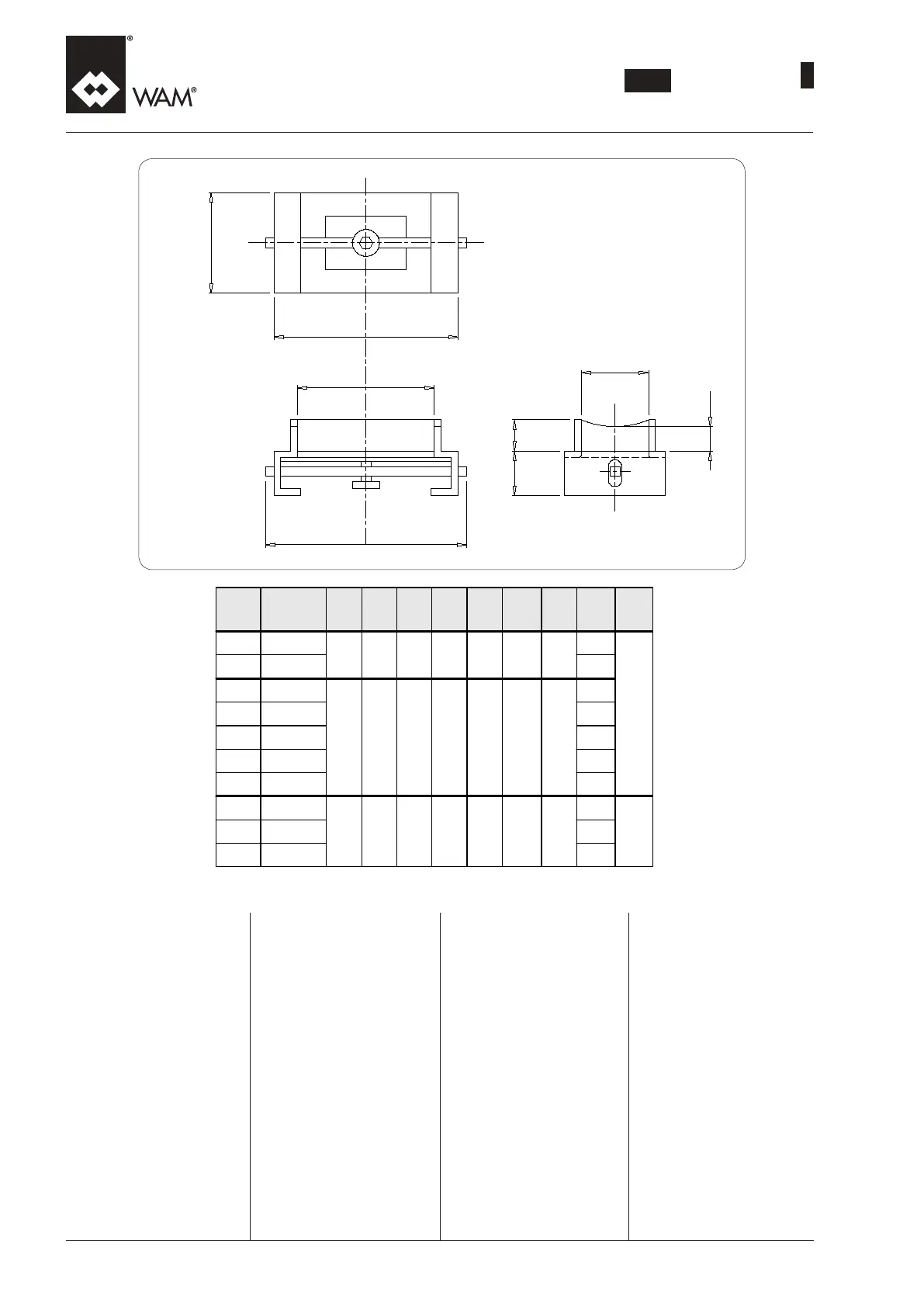
STANDARDACCESSORIES-INSPECTIONHATCH
STANDARDZUBEHÖR-INSPEKTIONSKLAPPE
ACCESSOIRESSTANDARD-TRAPPEDEVISITE
STANDAARDACCESOIRES-INSPECTIELUIK
Inspection hatches are provided
on standard conveyors beneath
the rst inlet spout, as well as be-
neath each intermediate bearing.
Inspektionsklappen sind serien-
mäßig unter dem ersten Einlauf
sowie unter jedem Zwischenlager
vorgesehen.
Inspectieluiken zijn aanwezig om
standaard transporteurs onder de
eerste inlaattuit, alsmede onder
iedere tussenlager.
Les trappes de visite sont mon-
tées de série au-dessous de
la première bouche d’entrée et
au-dessous de chaque palier
intermédiaire.
XKA
Ø Code A B C D E F G H kg
114
XKA041
274 150 244 70 300 46.5 66
34
3.5
139
XKA051
36.5
168
XKA061
274 150 244 97 300 48.5 66
32.5
193
XKA071
35
219
XKA081
36.5
273
XKA091
39
323
XKA161
40.5
406
XKA171
350 270 300 175 380 87.5 75
67.5
7.85457
XKA181
70
558
XKA191
73.5
E
A
B
F
G
C
H
D
42

Table of Contents