EasyManua.ls Logo

WAM TE - Page 139

Default Icon
195 pages
Print Icon
To Next Page IconTo Next Page
To Next Page IconTo Next Page
To Previous Page IconTo Previous Page
To Previous Page IconTo Previous Page
Loading...
1
05.16
TE • TP
-
-
-
-
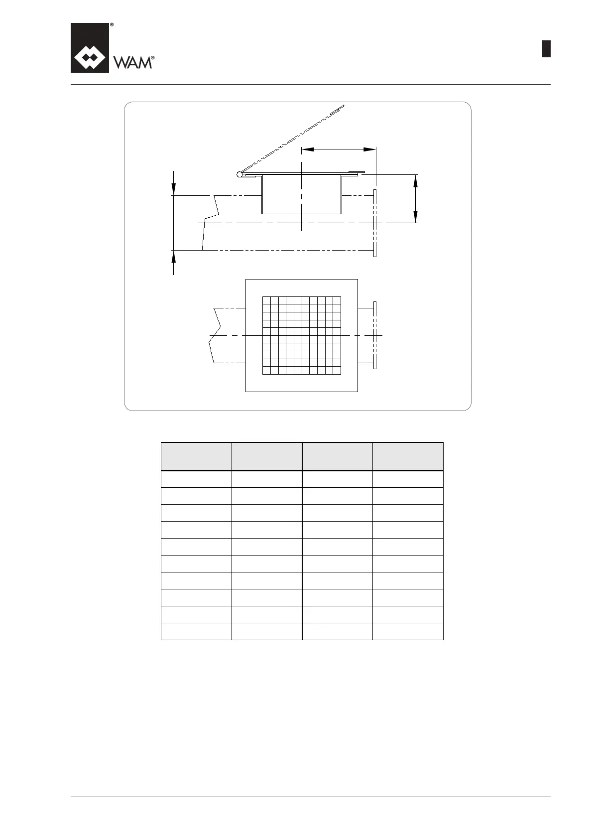
CON.109.--.T.4L-NL
ACCESSORIES-OVERFLOWHATCHFLAP
ZUBEHÖR-ÜEBERLAUFKLAPPE
ACCESSOIRES-CAPOTANTI-BOURRAGE
ACCESSOIRES–OVERSTROOMLUIKKLEP
XKD
Ø
B
A
Code Ø A B
XKD.50.1
114 230 130
XKD.55.1
139 230 130
XKD.60.1
168
230 130
XKD.65.1
219 260 165
XKD.70.1
273 280 195
XKD.75.1
323
320 225
XKD.80.1
406 340 265
XKD.85.1
457 370 295
XKD.90.1
558 430 350
XKD....1
660 480 410
81

Table of Contents