EasyManua.ls Logo

WAM TE - Page 94

Default Icon
195 pages
Print Icon
To Next Page IconTo Next Page
To Next Page IconTo Next Page
To Previous Page IconTo Previous Page
To Previous Page IconTo Previous Page
Loading...
TP
1
CON.109.--.T.4L-NL
05.16
-
-
-
-
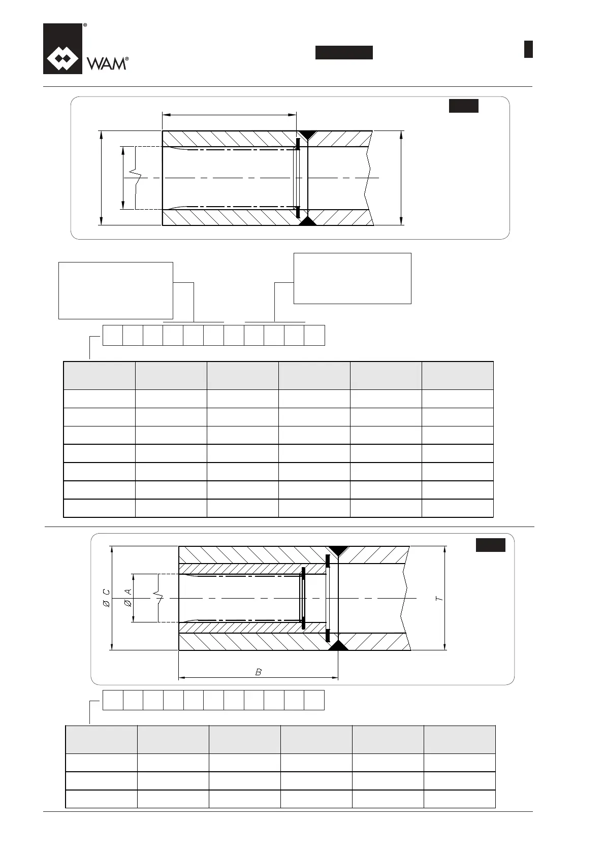
SHAFTCOUPLINGS
WELLENVERBINDUNGEN
ACCOUPLEMENTS
ASKOPPELINGEN
XAA-XAC
Internal pipe diameter
Innenrohrdurchmesser
Diamètre tube intérieur
Diameter inwendige
leiding
X A C T
1
028 = Ø 114 - 139
040 = Ø 168 - 219 - 273
048 = Ø 168 - 219 - 273
060 = Ø 323 - 406 - 457 - 558
075 = Ø 558
090 = Ø 660
X A A T
1
042=Ø 114
048 = Ø 139
060 = Ø 168 - 219 - 273
114 = Ø 323 - 405 - 457 - 558
168 = Ø 660
Code
ØA
DIN5482
B ØC ØT kg
XAA028T0421
28 x 25 65 42 42 0.45
XAA028T0481
28 x 25 65 48 48 0.65
XAA040T0601
40 x 36 92 60 60 1.15
XAA048T0601
48 x 44 92 60 60 1
XAA060T1141
60 x 55 140 114 114 8.2
XAA075T1141
75 x 69 140 114 114 6.75
XAA090T1681
90 x 84 180 168 168 23
Code
ØA
DIN5482
B ØC ØT kg
XAC028T0601
28 x 25 92 60 60 1.5
XAC040T1141
40 x 36 140 114 114 9.2
XAC048T1141
48 x 44 140 114 114 9
B
ØA
ØC
T
XAA
XAC
36

Table of Contents