EasyManua.ls Logo

WarmFlow Utility U90HE - Page 25

Default Icon
92 pages
Print Icon
To Next Page IconTo Next Page
To Next Page IconTo Next Page
To Previous Page IconTo Previous Page
To Previous Page IconTo Previous Page
Loading...
Page 23
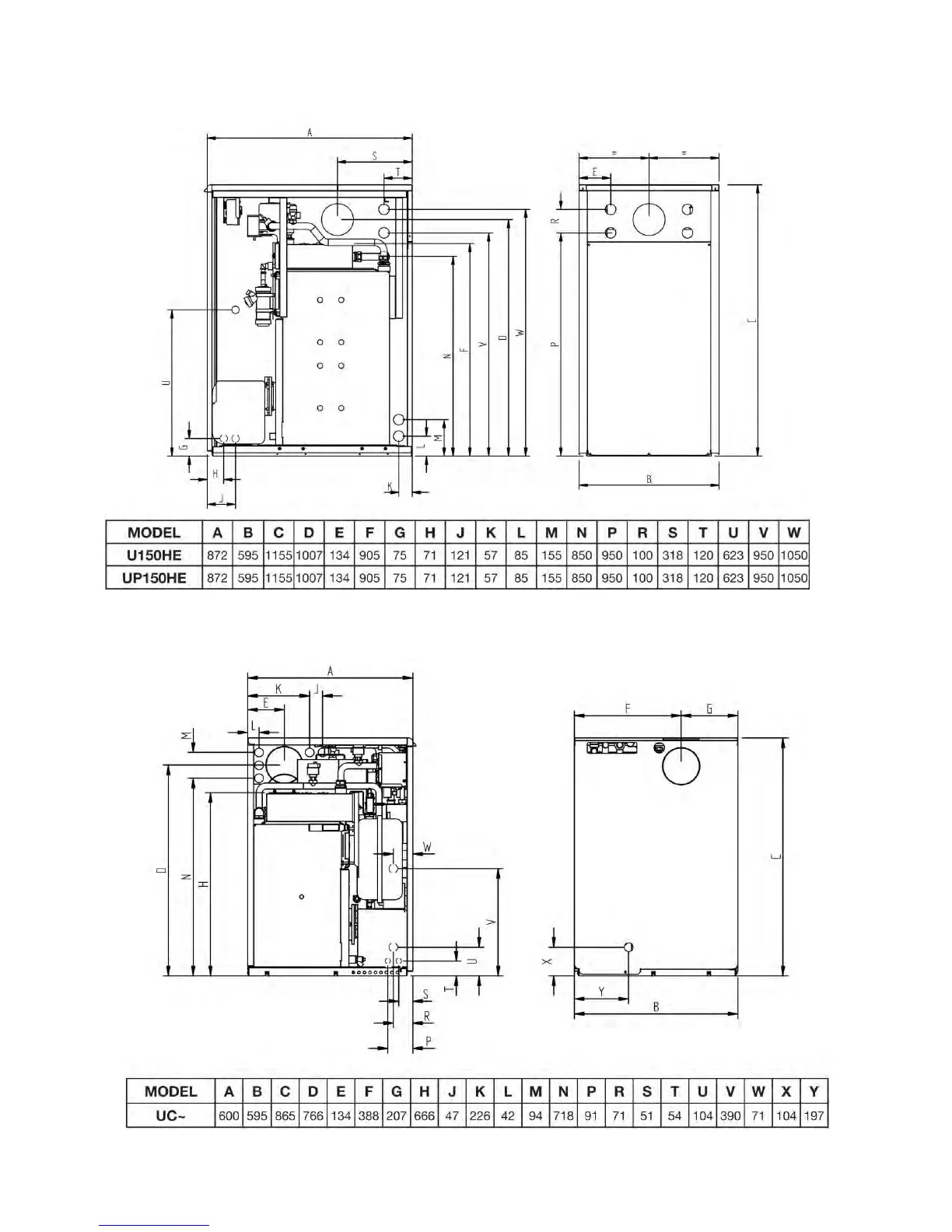
5.2.3 U-Series Utility (150HE Models)
5.2.4 U-Series Utility (UCHE Models)

Table of Contents

Related product manuals