EasyManua.ls Logo

WarmFlow Utility U90HE - Dimensions

Default Icon
92 pages
Print Icon
To Next Page IconTo Next Page
To Next Page IconTo Next Page
To Previous Page IconTo Previous Page
To Previous Page IconTo Previous Page
Loading...
Page 22
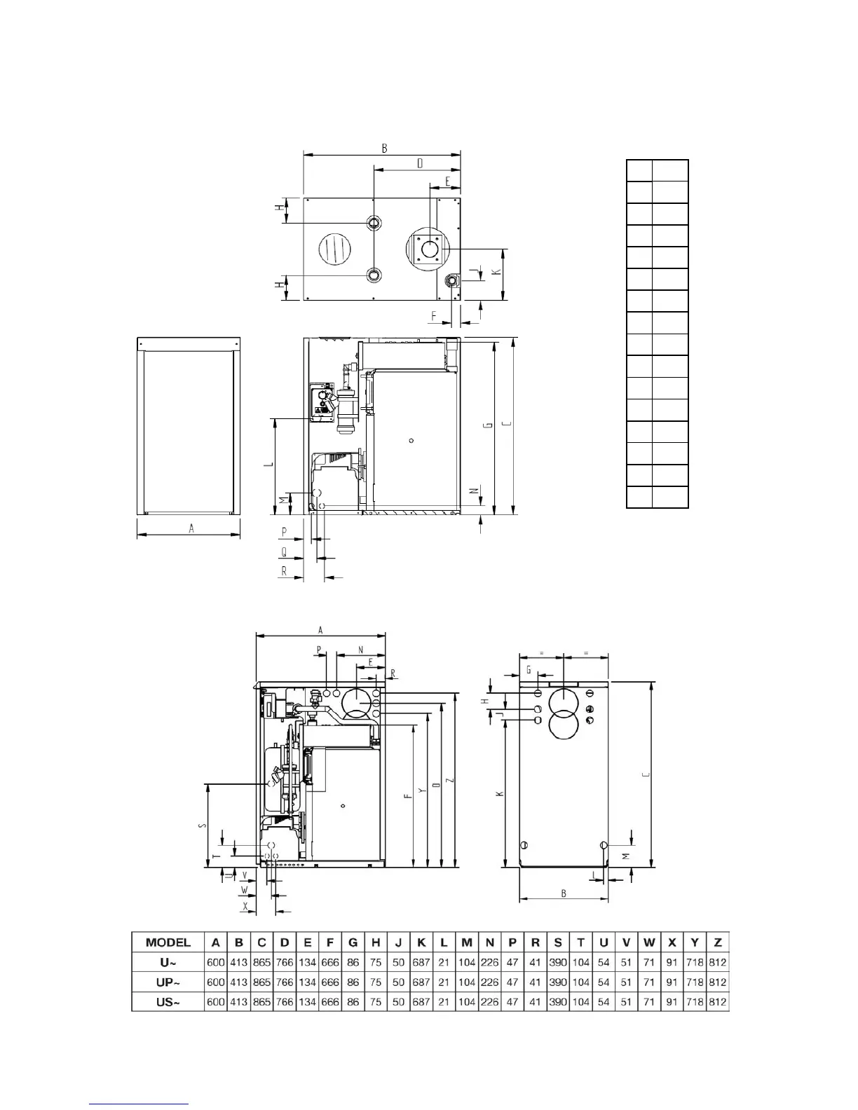
5.2 Dimensions
5.2.1 B-Series Boilerhouse (B70HE, B90HE & B120HE Models)
A
395
B
600
C
685
D
332
E
118
F
34
G
664
H
97
J
77
K
197
L
371
M
85
N
35
P
30
Q
50
R
80
5.2.2 U-Series Utility (UHE, UPHE & USHE Models up to 120HE)

Table of Contents

Related product manuals