EasyManua.ls Logo

Warmup 3IE - SETTING YOUR HEATING SYSTEM; Floor Type Setting Impact; Master;Relay System Configuration; Master;Relay Connection and Setup Steps

Warmup 3IE
28 pages
Print Icon
To Next Page IconTo Next Page
To Next Page IconTo Next Page
To Previous Page IconTo Previous Page
To Previous Page IconTo Previous Page
Loading...
16
24/7 Technical hotline - Ligne d’assistance technique - Línea de asistencia técnica
US 1.888.927.6333 / CA 1.888.592.7687
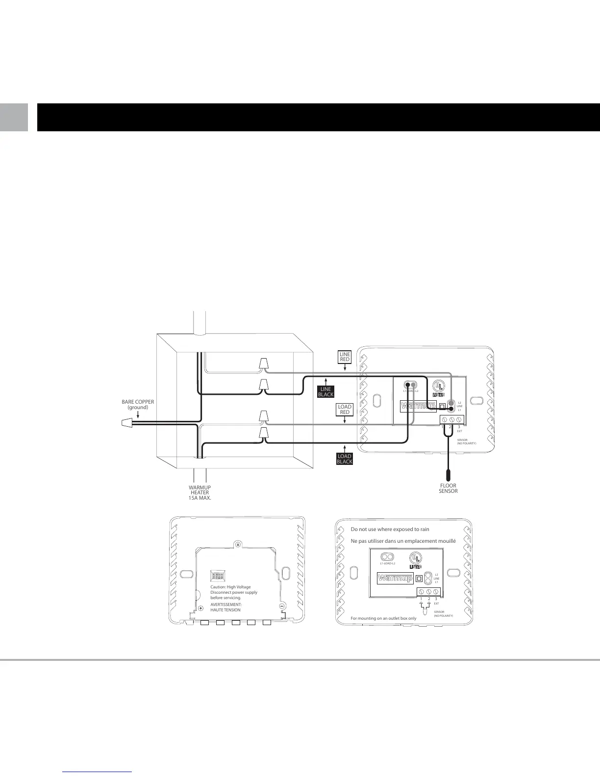
BRANCHEMENT ELECTRIQUE
Connectez les fils électriques primaires à l'alimentation en utilisant des connecteurs sans soudure pour
fils de cuivre (voir schéma ci-dessous).
1. Connectez le thermostat à l’alimentation (Sous tension et neutre – MAX 240V)
2. Connectez aux planchers chauffants (Sous tension et Neutre – MAX 3600W/ 15 A)
3. Connectez au premier câble de la sonde de sol (peu importe la couleur)
4. Connectez au second câble de la sonde de sol (peu importe la couleur)
REMARQUE: Toutes les connexions doivent être effectuées par un électricien qualifié et doivent être
conformes au code électrique local.
Caution: High Voltage
Disconnect power supply
before servicing.
AVERTISSEMENT:
HAUTE TENSION
For mounting on an outlet box only
1
2
3
EXT
SENSOR
(NO POLARITY)
L1-LOAD-L2
L2
LINE
L1
Ne pas utiliser dans un emplacement mouillé
1
2
3
EXT
SENSOR
(NO POLARITY)
L1-LOAD-L2
L2
LINE
L1
LOAD
RED
LOAD
BLACK
LINE
BLACK
LINE
RED
BARE COPPER
(ground)
FLOOR
SENSOR
WARMUP
HEATER
15A MAX.
Caution: High Voltage
Disconnect power supply
before servicing.
AVERTISSEMENT:
HAUTE TENSION
For mounting on an outlet box only
1
2
3
EXT
SENSOR
(NO POLARITY)
L1-LOAD-L2
L2
LINE
L1
Ne pas utiliser dans un emplacement mouillé
1
2
3
EXT
SENSOR
(NO POLARITY)
L1-LOAD-L2
L2
LINE
L1
LOAD
RED
LOAD
BLACK
LINE
BLACK
LINE
RED
BARE COPPER
(ground)
FLOOR
SENSOR
WARMUP
HEATER
15A MAX.

Other manuals for Warmup 3IE

Related product manuals