EasyManua.ls Logo

Webasto Scholastic Series - Chassis Wiring Diagram (Timer)

Webasto Scholastic Series
44 pages
Print Icon
To Next Page IconTo Next Page
To Next Page IconTo Next Page
To Previous Page IconTo Previous Page
To Previous Page IconTo Previous Page
Loading...
W
EBASTO
S
CHOLASTIC
S
ERIES
5INSTALLATION
5-15
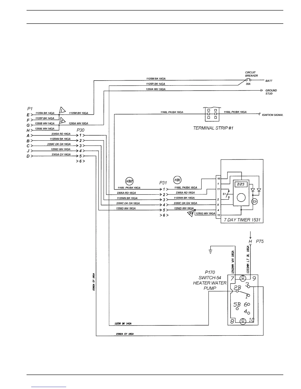
5.8.8 Wiring Diagram Chassis / Power Harness with Digital Timer Model 1531
Fig. 5-15: Wiring Diagram - Chassis / Power Harness with Digital Timer Model 1531
0030778
Option 1345-04

Table of Contents

Related product manuals