EasyManua.ls Logo

Wega EVD - Page 61

Wega EVD
100 pages
Print Icon
To Next Page IconTo Next Page
To Next Page IconTo Next Page
To Previous Page IconTo Previous Page
To Previous Page IconTo Previous Page
Loading...
TECHNICIANS' manual 61 of 100
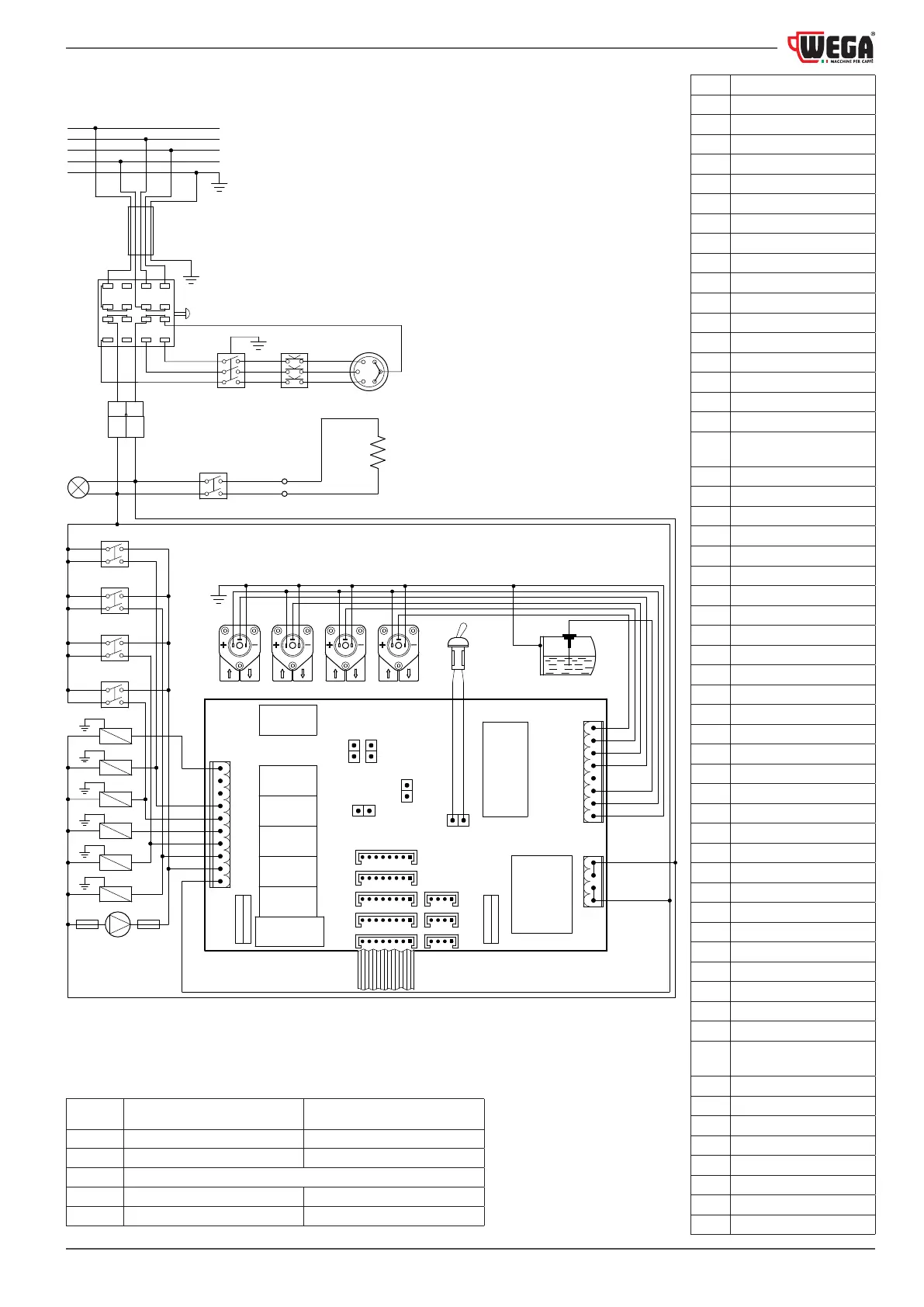
12.7.2 Wiring diagram code WY18077 - WY18078 - WY18079
R
S
T
N
MA
BL NE GR GV
CAB
P10
P11
P9
F1
F2
JP3
RL1
RL2
RL3
RL4
RL5
RL6
RL8
P1
P2
P3
P4
P6
P5
P8
IC2
SL
NE
BL
NE
MA
MA
MA
MA
GV
RO
BL
VE
VE
VE
VE
VE
VE
CV4
CV3CV2CV1
IP
CT
SCT
MB
LA
JP2
JP1
JP4
JP6
P7
RO
RO
RO
RO
RO
RO
RO
RO
BL
VE
BL
VE
BL
VE
BL
VE
BI
RO
PR
SA
CO
RE
IST
MA
BL
IM1
IM2
IM3
IM4
CAL
EVT
EV1
EV4
EVC
EV3
EV2
MP
TR1
13 9 5
1
3
71115
16 12 8
4
2
610
14
FP1
FP2
OO
O
O
BI
White
BL
Blue
CAB
Power cable
CAL
Heating unit
CO
Power switch
CT
Power supply connector
CV1
Flow meter GR1
CV2
Flow meter GR2
CV3
Flow meter GR3
CV4
Flow meter GR4
EV1
GR1 solenoid valve
EV2
GR2 solenoid valve
EV3
GR3 solenoid valve
EV4
GR4 solenoid valve
EVC
Filling solenoid valve
EVT
Tea solenoid valve
F1
Motor pump fuse (500 mA)
F2
Inlet fuse (6.3 A)
FP1(*)
Motor pump fuse UL
(OPD) fuse
FP1(*)
230 V UL (OPD) fuse
GR
Grey
GV
Yellow-green
IC2
Eprom
IM1
Manual switch GR1
IM2
Manual switch GR2
IM3
Manual switch GR3
IM4
Manual switch GR4
IP
Programm. switch
IST
Cup warmer switch
LA
Indicator light
MA
Brown
MB Pushbutton panel membrane
MP
Motor pump
NE
Black
P1
PB panel connector GR1
P2
PB panel connector GR2
P3
PB panel connector GR3
P4
PB panel connector GR4
P5
Tea button connector
P7
Serial connection
P9
Steam outlet connector
P10
Low voltage connector
P11
Power supply
PR
Pressure switch
RE
Heating element
RL1
Pump relay
RL2
GR2 solenoid valve relay
RL3
GR3 solenoid valve relay
RL4
Heating unit solenoid
valve relay
RL5
GR4 solenoid valve relay
RL6
GR1 solenoid valve relay
RL8
Tea solenoid valve relay
RO
Red
SA
Safety heating element
SL
Heating unit level probe
TR1
Transformer
VE
Green
JUMPER INSERTED NOT INSERTED
JP1 Serial connection enabled Serial connection disabled
JP2 Pre-infusion enabled Pre-infusion disabled
JP3 Programming switch
JP4 Filling the heating unit with the pump
Filling the heating unit without the pump
JP6 Dispensing tea with the pump Dispensing tea without the pump
(
*
) Fuses for UL versions where
a plug with a capacity greater
than 30 A is installed

Table of Contents