EasyManua.ls Logo

Wega EVD - Ema - Epu Dispensing Group; Hydraulic Diagram

Wega EVD
100 pages
Print Icon
To Next Page IconTo Next Page
To Next Page IconTo Next Page
To Previous Page IconTo Previous Page
To Previous Page IconTo Previous Page
Loading...
TECHNICIANS' manual 81 of 100
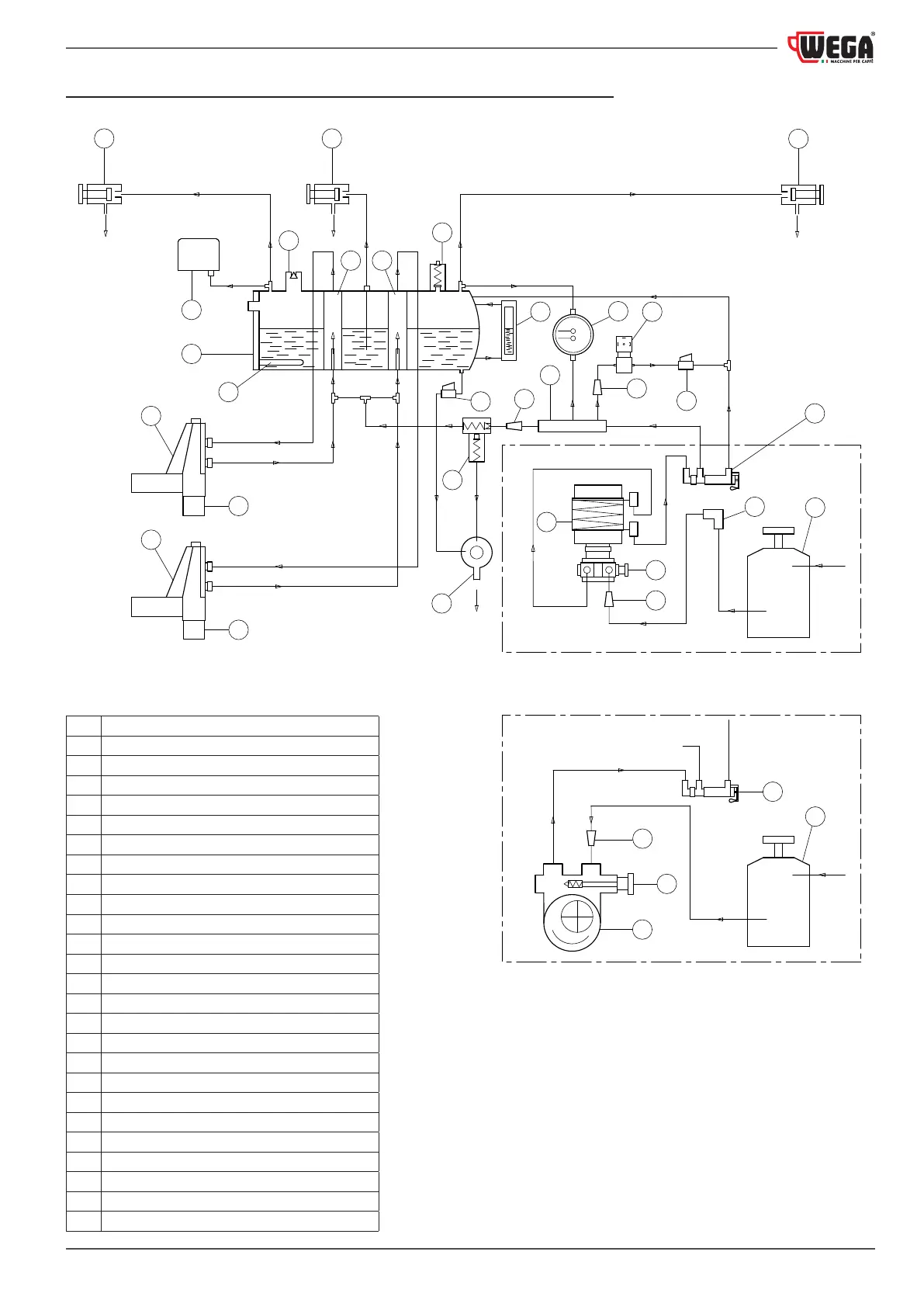
13.2 EMA - EPU DISPENSING GROUP hydraulic diagram
Internal motor pump
External motor pump
14
10
16
14
19
11
S
3
4
2
22
17
21
8
5
1
E
1
5
4
2
23
E
13
17
2
20
24
7
6
9
2
15
11
18
12
18
12
1 Water softener
2 Water inlet lter
3 Built-in motor pump
4 Pump pressure adjustment
5 Manual water inlet valve
6 SCNR valve
7 Drain tray
8 Pressure gauge
9 Optical level
10 Heating unit
11 Heat exchanger
12 Dispensing group
13 Hot water valve
14 Steam valve
15 Safety valve
16 Negative pressure valve
17 Heating unit drain valve
18 Group solenoid valve
19 Pressure switch
20 Automatic Water Entry Solenoid Valve
21 Water inlet connection
22 Water dispenser
23 External motor pump
24 Heating unit heating element
E Water inlet
S Drain

Table of Contents

Other manuals for Wega EVD

Related product manuals