EasyManua.ls Logo

Wega POLARIS Series - WEGA WY18090016-17 GIEMME Wiring Diagram

Wega POLARIS Series
68 pages
Print Icon
To Next Page IconTo Next Page
To Next Page IconTo Next Page
To Previous Page IconTo Previous Page
To Previous Page IconTo Previous Page
Loading...
53 of 68
TECHNICIANS manual
ENGLISH
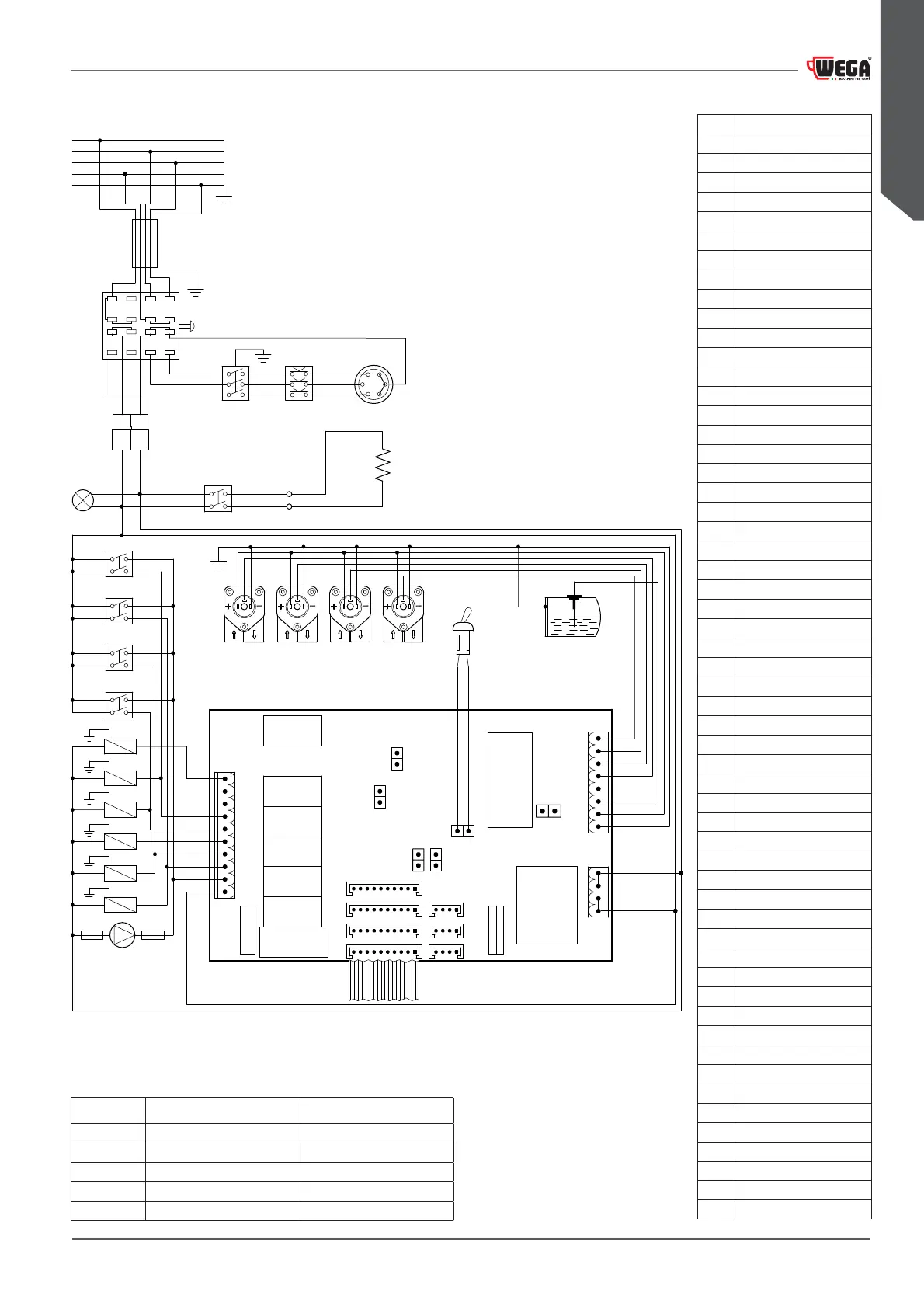
14.7.3 Wiring diagram cod. WY18090016 - WY18090017 *GIEMME*
P10
P11
P9
F1
JP1
JP6
JP4
F2
JP3
RL1
RL2
RL3
RL4
RL5
RL6
RL8
P1
P2
P3
P4
P6
P5
P7
IC2
SL
NE
BL
NE
MA
MA
MA
MA
GV
RO
BL
VE
VE
VE
VE
VE
VE
CAL
CV4
CV3CV2CV1
IP
MB
JP5
JP2
RO
RO
RO
RO
RO
RO
RO
RO
BL
VE
BL
VE
BL
VE
BL
VE
BI
RO
CT
SCT
LA
PR
SA
CO
RE
400V
IST
R
S
T
N
MA
BL NE GR GV
CAB
MA
BL
IM1
IM2
IM3
IM4
EVT
EV1
EV4
EVC
EV3
EV2
MP
TR
13 9 5
1
3
71115
16 12 8
4
2
610
14
FP1FP2
OOOO
BI White
BL Blue
CAB Power cable
CAL Boiler
CO Power switch
CT Supply connector
CV1 Volumetric counter GR1
CV2 Volumetric counter GR2
CV3 Volumetric counter GR3
CV4 Volumetric counter GR4
EV1 Solenoid valve GR1
EV2 Solenoid valve GR2
EV3 Solenoid valve GR3
EV4 Solenoid valve GR4
EVC Boiler lling solenoid valve
EVT Tea solenoid valve
F1 Motor pump fuse (500mA)
F2 Inlet fuse (6.3A)
FP1(*) Motor pump UL (OPD) fuse
FP1(*) UL (OPD) Fuse for 230V
GR Grey
GV Yellow-green
IC2 Eprom
IM1 GR1 manual switch
IM2 GR2 manual switch
IM3 GR3 manual switch
IM4 GR4 manual switch
IP Programming switch
IST Cup heater switch
LA Indicator light
MA Brown
MB Push button panel membrane
MP Motor pump
NE Black
P1
Push button panel connector GR1
P2
Push button panel connector GR2
P3
Push button panel connector GR3
P4
Push button panel connector GR4
P5 Tea connector key
P7 Serial connection
P9 Service outputs connector
P10 Low voltage connector
P11 Power supply
PR Pressure switch
RE Resistance
RL1 Pump relay
RL2 Solenoid valve relay GR2
RL3 Solenoid valve relay GR3
RL4 Boiler solenoid valve relay
RL5 Solenoid valve relay GR4
RL6 Solenoid valve relay GR1
RL8 Tea solenoid valve relay
RO Red
SA Resistance safety device
SL Boiler level probe
TR1 Transformer
VE Green
(
*
) Fuses for UL versions with plug with
a greater capacity than 30A
JUMPER INSERTED NOT INSERTED
JP1 Serial connection enabled Serial connection disabled
JP2 Pre-infusion enabled Pre-infusion disabled
JP3 Programming key
JP4 Boiler lling with pump Boiler lling without pump
JP6 Tea dispensing with pump Tea dispensing without pump

Table of Contents

Related product manuals