EasyManua.ls Logo

Wega POLARIS Series - WEGA WY18090030-31 GIEMME Wiring Diagram

Wega POLARIS Series
68 pages
Print Icon
To Next Page IconTo Next Page
To Next Page IconTo Next Page
To Previous Page IconTo Previous Page
To Previous Page IconTo Previous Page
Loading...
55 of 68
TECHNICIANS manual
ENGLISH
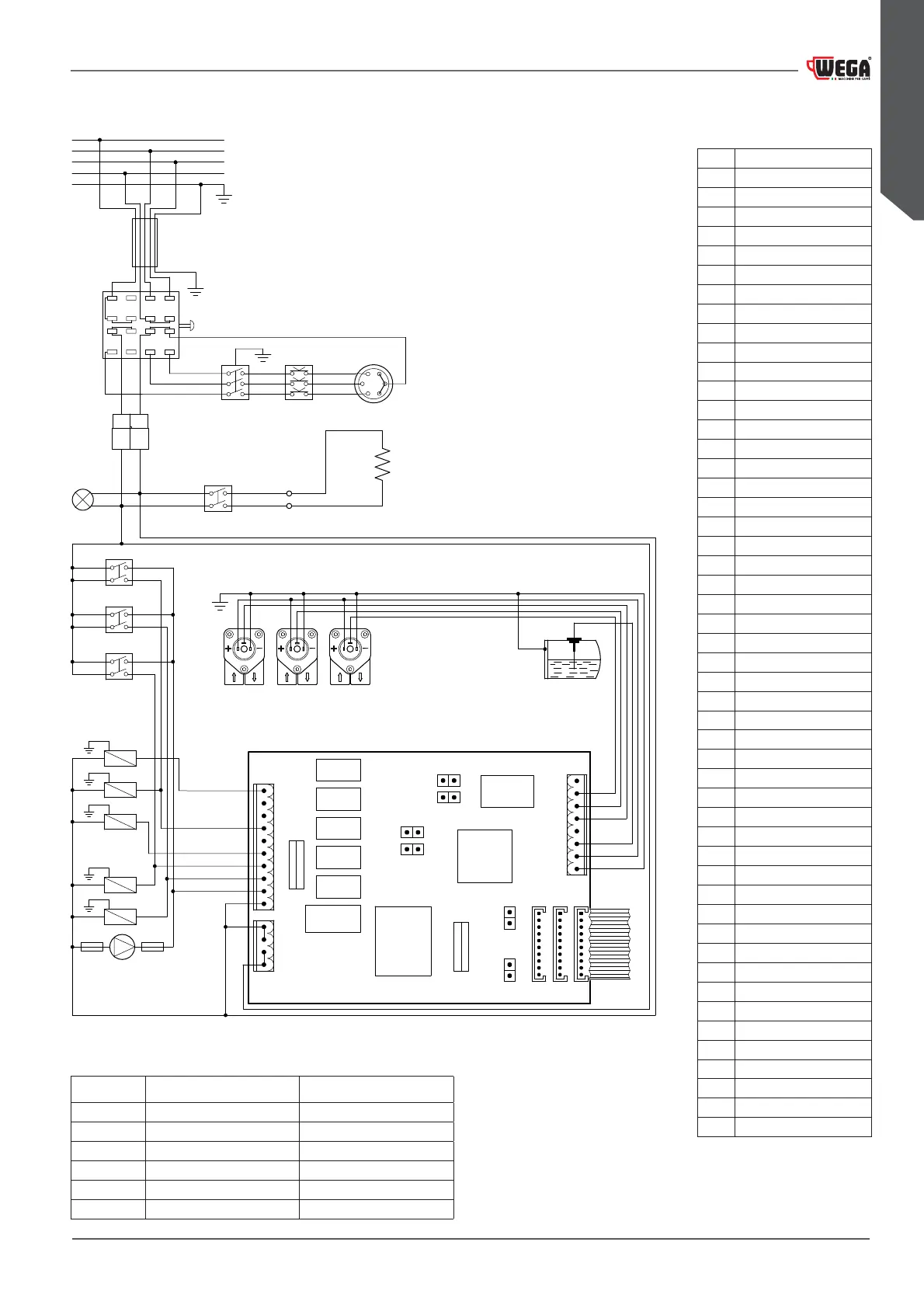
14.7.5 Wiring diagram cod. WY18090030 - WY18090031 *GIEMME*
BI White
BL Blue
CAB Power cable
CAL Boiler
CN1 Service outputs connector
CN2 Supply connector
CN3 Low voltage connector
CN4 Programming connector
CN9
Push button panel connector GR3
CN10
Push button panel connector GR2
CN11
Push button panel connector GR1
CO Power switch
CT Supply connector
CV1 Volumetric counter GR1
CV2 Volumetric counter GR2
CV3 Volumetric counter GR3
EV1 Solenoid valve GR1
EV2 Solenoid valve GR2
EV3 Solenoid valve GR3
EVC Boiler lling solenoid valve
EVT Tea solenoid valve
F1 Inlet fuse (6.3A)
F2 Motor pump fuse (500mA)
FP1(*) Motor pump UL (OPD) fuse
FP2(*) UL (OPD) Fuse for 230V
GR Grey
GV Yellow-green
IC2 Eprom
IM1 GR1 manual switch
IM2 GR2 manual switch
IM3 GR3 manual switch
IST Cup heater switch
LA Indicator light
MA Brown
MB Push button panel membrane
MP Motor pump
NE Black
PLT Tea push button panel
PR Pressure switch
RE Resistance
RL1 Tea solenoid valve relay
RL2 Solenoid valve relay GR1
RL3 Boiler solenoid valve relay
RL4 Solenoid valve relay GR3
RL5 Solenoid valve relay GR2
RL6 Pump relay
RO Red
SA Resistance safety device
SL Boiler level probe
TRF1 Transformer
VE Green
(
*
) Fuses for UL versions with plug with
a greater capacity than 30A
CN3
CN1
JP4
F2
JP3
SL
NE
BL
NE
MA
MA
MA
GV
RO
BL
VE
VE
VE
VE
VE
CV3CV2CV1
RO
RO
RO
RO
RO
RO
BL
VE
BL
VE
BL
VE
RL1
RL2
RL3
RL4
RL5
RL6
CN9
JP5
CN10
CN11
CN4
IC3
JP6
JP2
JP7
CN2
F1
RO
BI
MB
CT
SCT
LA
PR
SA
CO
RE
400V
IST
R
S
T
N
MA
BL NE GR GV
CAB
MA
BL
IM1
IM2
IM3
CAL
EVT
EV1
EVC
EV3
EV2
MP
TRF1
13 9 5
1
3
71115
16 12 8
4
2
610
14
FP1FP2
O
O
O
JUMPER INSERTED NOT INSERTED
JP2 Pre-infusion enabled Pre-infusion disabled
JP3 Dose programming enabled Dose programming disabled
JP4 Boiler lling with pump Programming disabled
JP5 Tea key enabled Tea key disabled
JP6 Tea dispensing with pump Tea dispensing without pump
JP7 STOP key continuation enabled STOP key continuation enabled

Table of Contents

Related product manuals