EasyManua.ls Logo

Weidmüller ACT20X - Page 102

Default Icon
110 pages
Print Icon
To Next Page IconTo Next Page
To Next Page IconTo Next Page
To Previous Page IconTo Previous Page
To Previous Page IconTo Previous Page
Loading...
102 1066540000/00/02.09
54
53
52
51
44
43
42
41
24
23
22
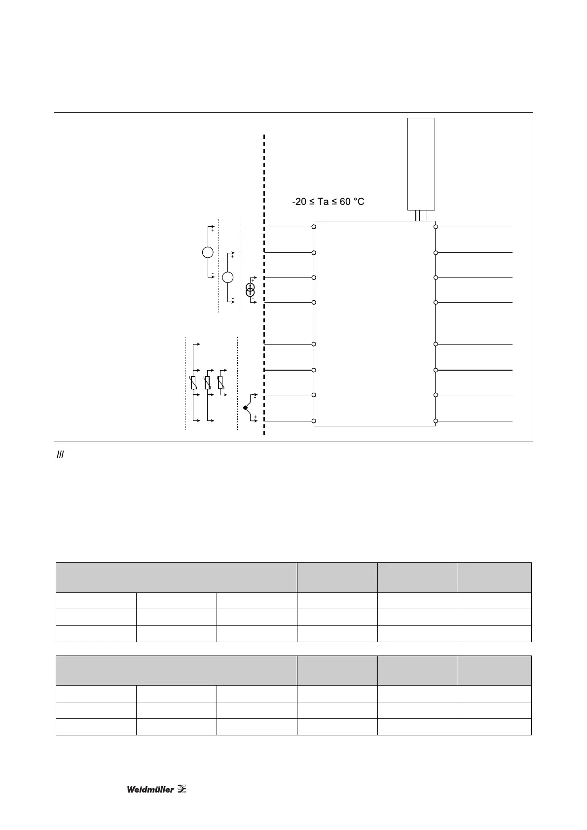
TCRTD / LinR
mAVLoop
T
4-wire 4-wire 4-wire
Potm. 2
Potm. 3
Potm. 1
21
14
13
12
11
ACT20X-HUI-SAO
CBX200 with
Configuration Software
Hazardous area
Class I/II/III, Division 1,
Group A, B, C, D, E, F, G
or Class I Zone 0/1/2, Group IIC, IIB, IIA
or Class I Zone 20/21
Simple Appatures or
Intrinsic safe apparatus
with entity parameters:
Vmax (Ui) > Vt (Uo)
Imax (Ii) > It (Io)
Pi > Pt (Po)
Ca > Ccable + Ci
La > Lcable + Li
Non Hazardous area
Class I, Division 2,
Group A, B, C, D T4
or Class I, Zone 2,
Group IIC, IIB, IIA T4
Configuration in
safe area only!
+
-
+
-
+
-
+
-
Illustration 7-33: FM Installation Drawing
Supply / Input
(terminal 41, 42, 43, 44)
(terminal 51, 52, 53, 54)
U
m
: 253 V, max. 400 Hz
896549 (ACT20X-HUI-SAO),
Terminal 21-24 / 22–24
Co Lo Lo/Ro
Uo, Voc 28 V IIC or A, B 80 nF 4.2 mH 54 µH/
Io, Isc 93 mA IIB or C, E, F 640 nF 16.8 mH 218 µH/
Po 0.65 W IIA or D, G 2.1 µF 32.6 mH 436 µH/
896549 (ACT20X-HUI-SAO),
Terminal 21–23
Co Lo Lo/Ro
Uo, Voc 28 V IIC or A, B 80 nF 100 mH 4 mH/
Io, Isc 1.1 mA IIB or C, E, F 640 nF 100 mH 17 mH/
Po 8 mW IIA or D, G 2.1 µF 100 mH 35 mH/