EasyManua.ls Logo

Wenger Trouper - Installing a Backdrop

Default Icon
51 pages
Print Icon
To Next Page IconTo Next Page
To Next Page IconTo Next Page
To Previous Page IconTo Previous Page
To Previous Page IconTo Previous Page
Loading...
12
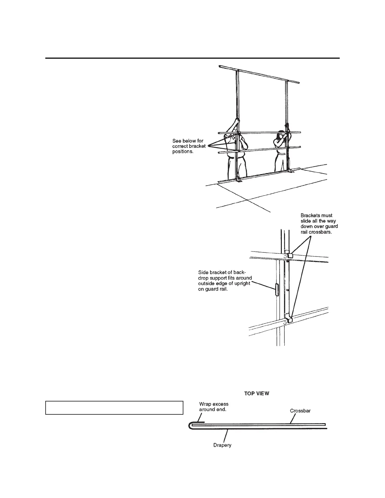
INSTALLING A BACKDROP
NOTE: Two people are required to install the
backdrop support.
1. Unfold each backdrop support and set it on
a guard rail as shown.
2. Hook-and-loop tape is attached to both
surfaces so that drapery sections can be
secured to the crossbar of the backdrop
support.
Use a ladder to attach the drapery. Wrap
any excess drapery around the end of the
crossbar.
For disassembly instructions, see page 20.