EasyManua.ls Logo

Wenger Trouper - Page 23

Default Icon
51 pages
Print Icon
To Next Page IconTo Next Page
To Next Page IconTo Next Page
To Previous Page IconTo Previous Page
To Previous Page IconTo Previous Page
Loading...
23
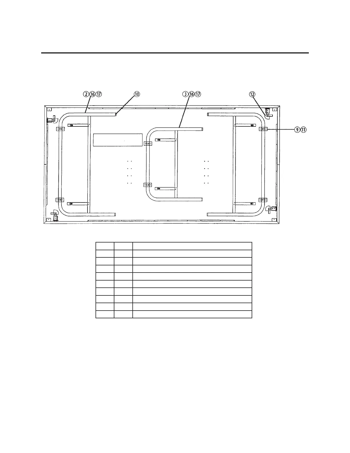
REPLACEMENT PARTS LIST (CONTINUED)
P
LATFORM DECK
Item Qty Description
2 2 Leg assembly, outside
3 1 Leg assembly, inside
9 6 Bracket, leg pivot
10 6 Plug, leg tip, fixed-height
10 6 Plug, leg tip, dual-height
11 3 Screw, Phillips pan-head, 8 - 18 x 1/2"
12 4 Lock assembly, unit-to-unit
16 6 Lock, brace
17 6 Spring, compression