EasyManua.ls Logo

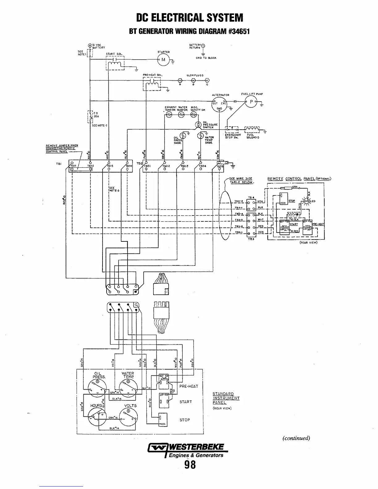
Westerbeke 38B FOUR - BT Generator DC Electrical System; BT Generator Wiring Diagram #34651

Westerbeke 38B FOUR
110 pages
Print Icon
To Next Page IconTo Next Page
To Next Page IconTo Next Page
To Previous Page IconTo Previous Page
To Previous Page IconTo Previous Page
Loading...
+
12.
VDC
,_
,BATTERY
SEE : :
NOTE.
1 L J
~--;---l
REMOVE
JVMPER
WH!:N
CONNECTING
REM"TE
CONTROL
?ANE~
Tel
,
I
,
I
I
I
I
I
I
I
I
I
I
I
I
I
I
I
r 1
I I C a
I
120A
L 1
I
I
,
I
I
I
r
I
I
I
I
,
I
I
I
I
I
So~Non-2
L
__
L-
______
_
I
I
I
I
I
'SEE:
i
NOTE
-
3
I
I
r
I
,
I
,
L_
DC
ELECTRICAL
SYSTEM
BT
GENERATOR
WIRING
DIAGRAM
#34651
I I
BATTERY<:;=>
RETURN 1
GNO
TO
BLOCK
: : REMOTE
CONTROL
PANEL(oPTIONAL)
! i
:-----;;;------,
I I
rr--
"II
, I
TB4
I J
r-
\
I~
! i
--
.!.t\!:!.
~~tU
I :
'''LED
I
L
___
+
__
-_~_-_:_:._+~====-=------
----
l~~
=:£fih21~r.+~
~I
,J
START
~
----
-\;'
--
.I
e
.!.-!.
Ri9-rtl
~--
:~4
,
J'
_____
,_____
_
_______
~-!.!!l.:.!-
.E.E.Q....I1
14R
I
TIl
3
L'-:--
-
=-=-=-=-=-==-
(REAR
VIEW)
~--I--t----'-l'
",--~....¢.o-"!-+~~.,--o-~~:+""'t"""t--'
r:::=~-'
PRE
-HEAT
I
STANDARD
INSTRUf.llENT
I
START
~
(REAR
VIEW)
. STOP I
~-----~.-----------------.------~
(continued)
Engine~
&
Generators
98

Table of Contents

Related product manuals