EasyManua.ls Logo

WHARTON 4850 - GPS Receiver System Installation; 488 HS;488 B GPS Connections

Default Icon
48 pages
Print Icon
To Next Page IconTo Next Page
To Next Page IconTo Next Page
To Previous Page IconTo Previous Page
To Previous Page IconTo Previous Page
Loading...
4850 / 4860 Master Clock
Operating and Installation Instructions
Issue 2.0 5-2
Lead
Antenna
plug-in terminal block
two part power/data
Internal antenna socket
ABCD
POWER
STATUS
B A + -
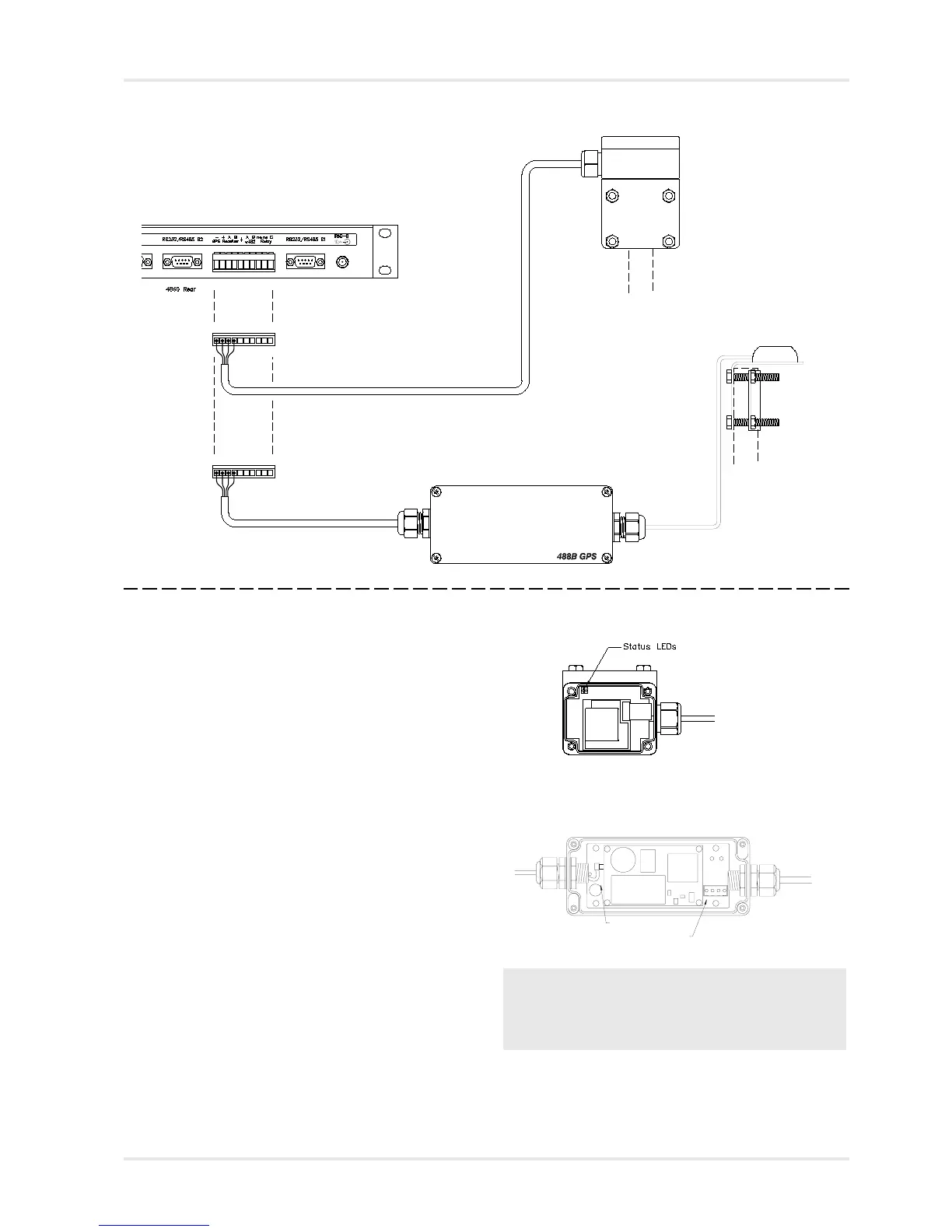
3 A connection between the 488HS / 488B and the 4850 /
4860 should be made using the 25 metre four core
cable supplied. If a longer cable distance is required
Appendix A should be consulted for suitable cable
specifications. The maximum distance between the
GPS system and the 4850 / 4860 master clock is 200m.
If a screened cable is used, the cable screen should be
connected to the EMC ground connection on the 10 way
terminal block, located on the rear of the 4850 / 4860.
On 488B systems, the screen should be connected to
the screw fitting on the 488B receiver/decoder case.
The screen is supplied pre-connected on 488HS units
with captive cable connections.
4 The 4 GPS input connections located on the 10 way
terminal block on the rear of the 4850 / 4860, should be
wired as shown in the diagram on page 5.1.
5 Connect the power supply to the 4850 / 4860 Master
Clock.
6 Once the power has been applied the receiver will
automatically begin to search the sky for all available
satellites, during this process the green LED will flash.
After three satellites have been acquired the green LED
will stop flashing and become constantly illuminated,
indicating that a precise date and time has been
calculated from the satellite data transmissions. From a
‘cold’ start this process will typically take less than 10
minutes.
7 Ensure that the 4850 / 4860 is configured to synchronise
from the GPS signal by following the procedure on
page 5-3.
Once the green LED has illuminated the synchronising time
signals are transmitted from the GPS system to the 4850 /
4860. The 4850 / 4860 Master Clock should lock in and display
the correct time within 5 minutes.
B884/SH884ot0684morfsnoitcennoC
B884/SH884
noitcennoCSPG
0684
noitcennoC
ruoloCnoitcennoC
deilppusgnisu(
)elbacm52
++deR
-- eulB
AA wolleY
BB neerG
488B Receiver decoder unit.
Housed in IP65 case, suitable for mounting
in a sheltered external location.
5 metre cable
(cannot be extended)
488B Antenna
Should be mounted with a
view of at least 75% of the
sky.
20mm dia. post
(not supplied)
Both the 488HS and the 488B GPS Receiver systems are
supplied with 25 metres of 4 core cable. Cable distance can
be extended up to a maximum distance of 200 metres using
the cable specifications detailed in appendix A.
20mm dia. post
(not supplied)
488HS GPS Receiver
Should be mounted with a
view of at least 75% of the
sky.
488HS GPS Receiver System
488B GPS Decoder
25metre captive
cable for connection
to 4850 / 4860
Master Clock.

Related product manuals