EasyManua.ls Logo

Whirlpool 4322452 - Page 63

Whirlpool 4322452
88 pages
Print Icon
To Next Page IconTo Next Page
To Next Page IconTo Next Page
To Previous Page IconTo Previous Page
To Previous Page IconTo Previous Page
Loading...
Page 4-19
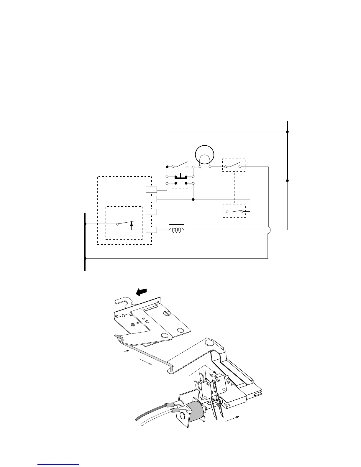
Figure 4-30
When the solenoid plunger extends, two things happen (see Figure 4-30). As the latch solenoid
locks the door, it also activates the two door latch switches. Both door switches are normally-open
switches. As the solenoid moves to lock the door, the switches toggle, and:
a) Open the oven light circuit so that the light cannot be operated during the Clean function.
b) Provide a logic circuit for the electronic board to indicate that the door is locked and that
the Clean cycle can continue.
L1
N
BK
W
OVEN CONTROL
LATCH SOLENOID
RELAY
LATCH
SOLENOID
P4
P1-3
P1-5
BU
GY
Y
Y
W
W
W
BK
R
DOOR LATCH
SWITCH
DOOR LATCH
SWITCH
DOOR
LIGHT SW.
OVEN LIGHT
MANUAL
OVEN LIGHT
SWITCH
N.O.
N.O.
P1-1
1 SEC PULSE
Solenoid Plunger
Extended
Actuator Rod
Door Latch
Switches
DOOR LOCKED

Table of Contents

Related product manuals