EasyManua.ls Logo

Whirlpool WOS51EC0H - Page 54

Whirlpool WOS51EC0H
84 pages
Print Icon
To Next Page IconTo Next Page
To Next Page IconTo Next Page
To Previous Page IconTo Previous Page
To Previous Page IconTo Previous Page
Loading...
For Service Technician Use Only
COMPONENT TESTING
3-6
n
Whirlpool
®
Smart Wall Ovens
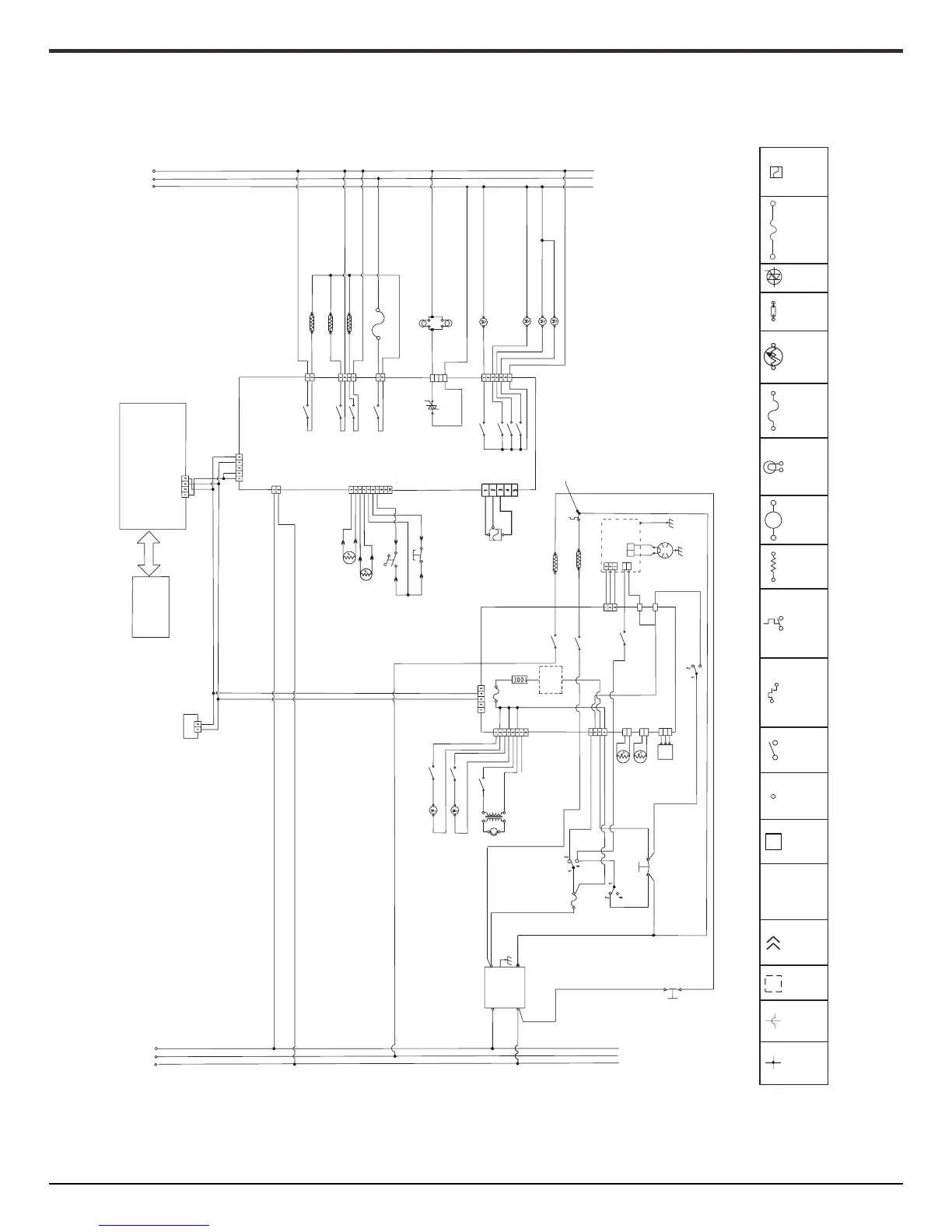
Wiring diagram for models WOC97EC0H and WOCA7EC0H
71 BR
NL2
L1
Line
20A
Fuse
Primary
Switch
Interlock
43 BU
42 WH
51 BU
22
BR
21 BR
31 Y
82 BR
81 BR
4906
Tu rntable
84 BK83 BK4901
Magnetron Fan
RD
RD
Halogen Light
85 BR
86 BR
4902
MW Light
Transformer
Monitor
Conv. Thermoactuator
Interlock
Cavity
Switch
Thermostat
32 YL
P2
52 BU
P26
Fuse
250mA
Magn
Thermistor
Cavity
Thermistor
Humidity
Sensor
P1
1600
P21
P22
P23
Control
Inverter
4903
MW Relay
ACU
Microwave
P8
Switch
P355
Secondary Interlock
P354
9 BU
63 WH
CN701
PWM
MW Inverter
CN703
E701
CN702
90 R
F
91 R
FA
Magnetron
GN
19 YL/
K4
K6
K7
K8
YL
WH
WH
WH
OR
GY
Motor Door Latch
Convect Fan
GY/BK
LS Cooling Fan
BK
P5
BK
BK
BU
HS Cooling Fan
BU
Broil 3600W
BU
Bake 2800W
RD
RD
YL YL
RD
RD
Convect 2500W
PX4
PX1
PX3
RD/WH
K11
K10
K2
K3
ACU
YL
OR
Copernicus
BK
WH
J8
P3
VT
VT
Te mperature Limiter
Open Temp 338ÀF (170ÀC)
BU
Sensor
TN
Oven Temperature
BR
Motor Latch Switch
GN
OR
RD/WH
YL
Door Switch
OR/BK
EOL
Keypad
J1
User Interface
P1
YL
BR
Win/Power
OR
BR
OR
YL
P1
RD
YL
NL2L1
BK
P4
8 BU
Hall Sensor
WH
Oven Lights
WH
BK
TR1
P7
1
2
3
4
Thermo Fuse
LEGEND
Indicator
Light
ThermistorNon-Resettable
Fuse
Connection
No
Connection
On
Some
Models
In-Line
Connection
Connector P2,
Position 1
Circuitry
Enclosed
Within
Terminals Single
Switch
Thermal Switch
(opens on
heat rise)
Thermal Switch
(closes on
heat rise)
Resistor
or Element
MotorHalogen
Light
Triac
P2-1
M
Hall Effect
Sensor
Meat Probe Sensor
OR
GN
14 RD
BK
WH
12 BU
Grill
Thermostat
P32P33
Line
P31
P34
Filter L1
72 BR
41 WH
Grill
Relay
4904
4905
Conv. Relay
2 BK
17 WH
Broil 1600W
44 BU
3 BK
Conv. 1200W
18 BU
61 WH
Convection Thermostat
Opens at 293ÀF (145ÀC)
Closes at 221ÀF (105ÀC)

Related product manuals