EasyManua.ls Logo

Williamson Series 2 - Page 15

Default Icon
48 pages
Print Icon
To Next Page IconTo Next Page
To Next Page IconTo Next Page
To Previous Page IconTo Previous Page
To Previous Page IconTo Previous Page
Loading...
15
Part Number 550-142-785/0812
4 Install water piping continued
GWI
Series 2 Gas-Fired Water Boilers – Boiler Manual
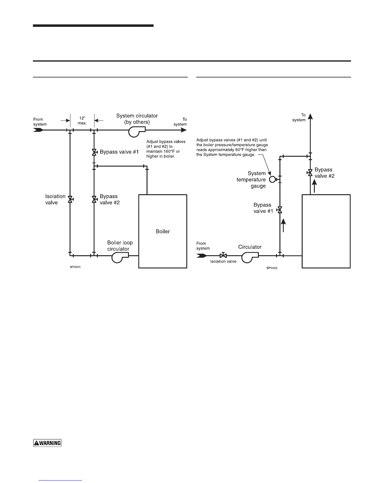
Figure 12 System bypass piping in boiler loop with
separate system circulator, using primary/
secondary piping
Figure 13 Boiler bypass piping — use only for high
water content systems — DO NOT use for
radiant panel systems
Near-boiler piping continued
Installallcomponentsspeciedaboveandadjustvalvesasdescribedtopreventlowtemperatureintheboiler.Failureto
preventlowwatertemperatureintheboilercouldcausecorrosionoftheboilersectionsorburners,resultinginsevere
personal injury, death or substantial property damage.
System bypass method
1. Apply bypass piping of Figure 12 to high water content
systems,radiantpanelsystemsoranysystemthatislikely
to operate with lowreturn water temperature forextended
periods.
2. Thebypassarrangementshownprotectstheboilerfromdam-
age caused by condensate corrosion due to low return water
temperatureandprotectslowtemperaturesystemsfromtoo
high a supply temperature.
3. Adjustthebypassvalvesasindicatedbelow.
Adjust Bypass valves 1 and 2 as follows:
1. Startwithvalve2fullyclosed,valve1fullyopen.
2. Slowlyopenvalve2whileclosingvalve1.Adjustthevalves
untiltheboilerpressure/temperaturegaugereads160°For
higher.Asyouopenthevalves,pauselongenoughtoallow
temperaturestoleveloff.Ittakesawhilefortheboilerwater
temperature to rise as the flow changes.
3. Bypass valve 2 allows hot boiler outlet water to blend with
colder return water, raising the supply temperature to the boiler.
Bypass valve 1 balances the pressure drop through valve 2.
4. Thepurposeofthispipingistoraisethereturnwatertem-
peraturetotheboilerenoughtopreventcondensationofue
gases.
Boiler bypass method
1. ApplybypasspipingofFigure 13 to high water content sys-
tems, such as converted gravity systems.
2. Thebypassarrangementshownprotectstheboilerfromdam-
age caused by condensate corrosion due to low return water
temperature.Thismethoddoesnotprovideprotectionfrom
high temperature water being supplied to the system.
3. DO NOT apply this piping to radiant panel systems.
4. Adjustthebypassvalvesasindicatedbelow.
Adjust Bypass valves 1 and 2 as follows:
1. Startwithvalve1fullyclosed,valve2fullyopen.
2. Slowlyopenvalve1whileclosingvalve2.Adjustthevalves
until the boiler pressure/temperature gauge reads approxi-
mately60°Fhigherthanthesystemtemperaturegauge.As
you open the valves, pause long enough to allow temperatures
toleveloff.Ittakesawhilefortheboilerwatertemperatureto
rise as the flow changes.
3. Bypass valve 1 controls system flow rate. Bypass valve 2
controls flow through the boiler.
4. The purposeofthispipingistocauseahighenough tem-
perature rise in the boiler that the average temperature will
bewarmenoughtopreventcondensationofuegases.