EasyManua.ls Logo

Windhager LogWIN LWP 180 - Minimum Clearances

Windhager LogWIN LWP 180
32 pages
Print Icon
To Next Page IconTo Next Page
To Next Page IconTo Next Page
To Previous Page IconTo Previous Page
To Previous Page IconTo Previous Page
Loading...
6
For the Installer
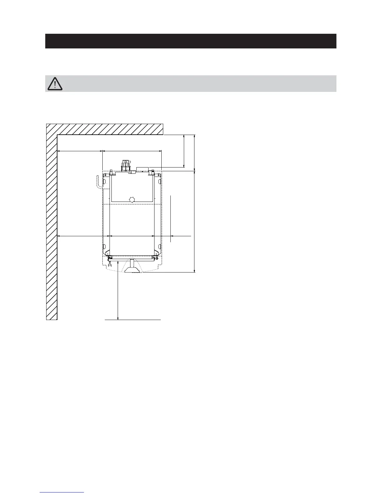
2.2.4 Minimum clearances
Fig. 4 View from above
Follow the installation guidelines for boiler room/installation room!
494
(604)
min.
580
(680)
min.
180
min.
650
(760)
min.
360
400
min.
500
(600)
654
(764)
1120
1)
Recommended minimum room heights: 1950 mm
All measurements in mm.
Details provided in brackets apply
to
LPW 360,500.
1) min 280 mm with door catch
on this side

Related product manuals