EasyManua.ls Logo

Windhager LogWIN LWP 180 - Dimensional Sketches

Windhager LogWIN LWP 180
32 pages
Print Icon
To Next Page IconTo Next Page
To Next Page IconTo Next Page
To Previous Page IconTo Previous Page
To Previous Page IconTo Previous Page
Loading...
7
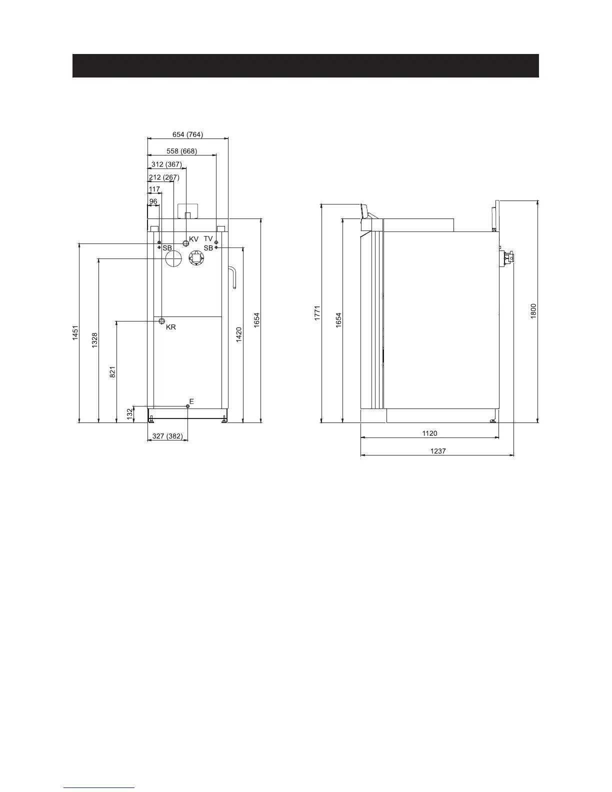
2.3 Dimensional sketches
Fig. 5 Rear view Fig. 6 Left view
KV . . . . .Boiler feed (5/4” pipe)
KR . . . . .Boiler return (5/4” pipe)
TV . . . . .Thermal valve sensor (1/2” sleeve)
SB . . . . .Thermal safety device (1/2” tube)
E . . . . .Discharge
For the Installer
2)
All dimensions in mm:
Details provided in brackets apply to
LPW 360 and 500.
2) with cleaning cover open

Related product manuals