EasyManua.ls Logo

WinGD WARTSILA RT-flex58T-E - Page 144

WinGD WARTSILA RT-flex58T-E
504 pages
Print Icon
To Next Page IconTo Next Page
To Next Page IconTo Next Page
To Previous Page IconTo Previous Page
To Previous Page IconTo Previous Page
Loading...
Maintenance23031/A1
RT-flex58T-E
Winterthur Gas & Diesel Ltd.
4/ 7
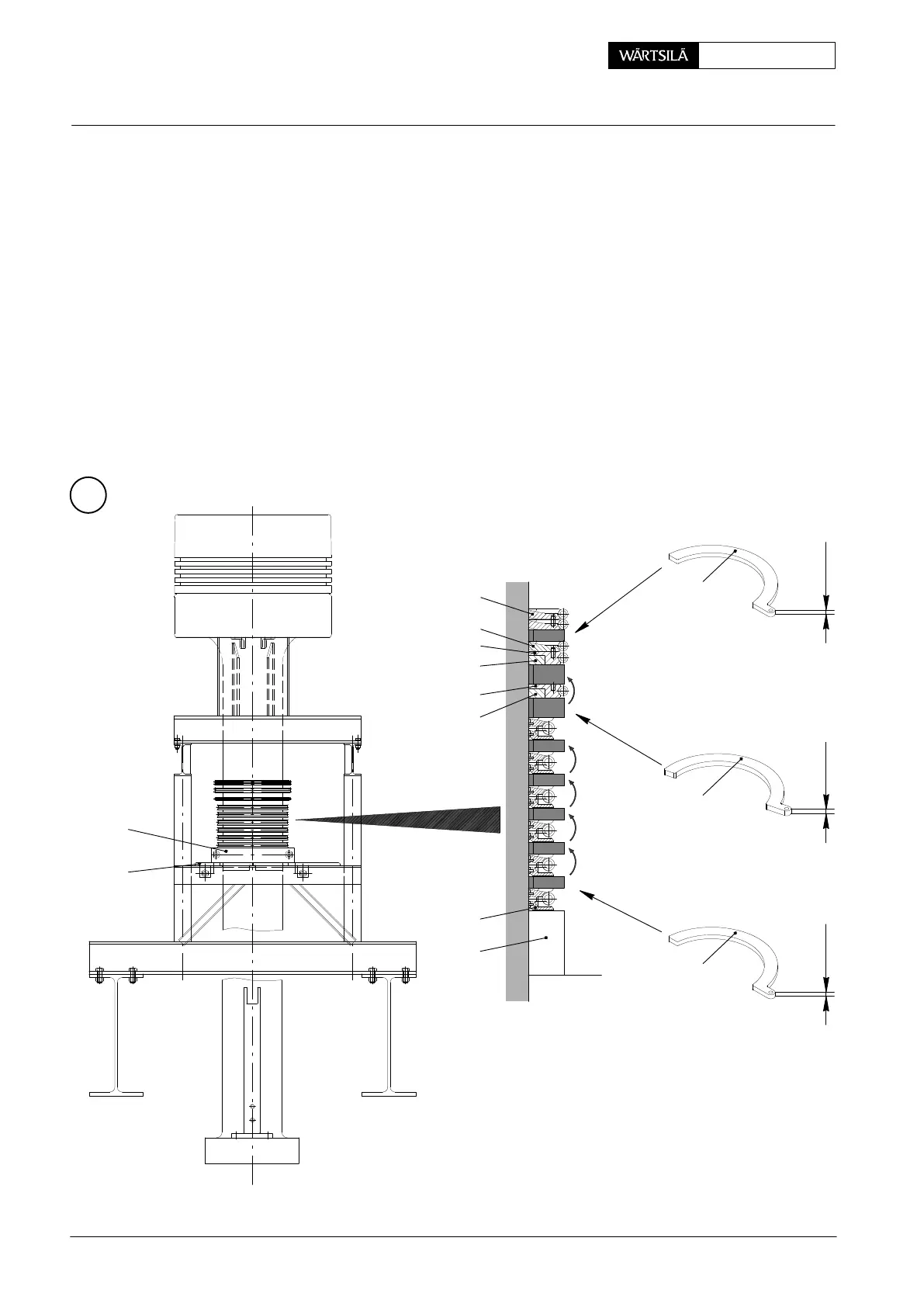
2.3 Assembling a gland
Place the piston in piston supporting device 94350, its hinged covers 18 must
be folded down.
Attach clamping ring (2-part) 94345B resting on hinged cover to piston rod
17.
Place the three parts of a ring support 5 on the clamping ring with scraper ring
6 (Fig. ’D’) fitted. Distribute the distances evenly.
Use assembly tool 94345E (see 94035) for fitting tension spring 9.
Place two distance pieces 94345F (11 mm) on ring support 5 and fit another
ring support with scraper ring 6 and tension spring 9 as described above.
D The height of distance pieces 94345F corresponds to the respective web
height of the ring grooves in 2-part housing 1.
C
4
19 mm11mm
009.655/02
009.654/02
3
2
5
94345B
94345F
94345F
11mm
009.655/02
94345F
18
94345B
2
4
3
012.173/04
012.646/05
2013
Piston Rod Gland: Dismantling and Assembling, Measuring the Wear

Table of Contents

Related product manuals