EasyManua.ls Logo

WinGD WARTSILA RT-flex58T-E - Page 350

WinGD WARTSILA RT-flex58T-E
504 pages
Print Icon
To Next Page IconTo Next Page
To Next Page IconTo Next Page
To Previous Page IconTo Previous Page
To Previous Page IconTo Previous Page
Loading...
Maintenance56121/A1
RT-flex58T-E
Winterthur Gas & Diesel Ltd.
2/ 3
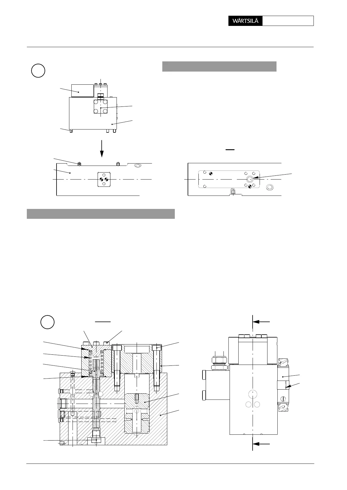
3. Fitting
Place new O-ring 25 into the groove of servo oil rail 6.
Lower the complete exhaust valve control unit onto
the servo oil rail.
Apply oil to screws 4 and tighten them with a torque
of 170 Nm.
Install pipes. For fitting the hydraulic pipe to the ex-
haust valve control unit see 84601.
B
25
10
7
6
I
I
015.976/07
8
1
4
4. Dismantling of exhaust valve control unit
Loosen screws 9 and remove cover 10.
Withdraw piston 11 using a jacking screw M10.
Loosen screws 12 and remove cover 13.
Remove compression spring 14 and slide rod 15.
D In order to remove and clean filters 19 and 21, the relevant screw plugs 18 and
20 must be loosened.
D Throttle 22 is oiled, screwed into filter 21 and tightened with 3 Nm.
D Filter 19 (thread oiled) is screwed into screw plug 18 and tightened with a
torque of 10 Nm.
C
I - I
I
12
13
I
3
5
9
10
11
1
26
14
15
26
16
015.977/07
2013
Exhaust Valve Control Unit: Removal, Fitting, Dismantling and Assembling

Table of Contents

Related product manuals