EasyManua.ls Logo

WinGD WARTSILA RT-flex58T-E - Page 364

WinGD WARTSILA RT-flex58T-E
504 pages
Print Icon
To Next Page IconTo Next Page
To Next Page IconTo Next Page
To Previous Page IconTo Previous Page
To Previous Page IconTo Previous Page
Loading...
Maintenance64201/A1
RT-flex58T-E
Winterthur Gas & Diesel Ltd.
2/ 3
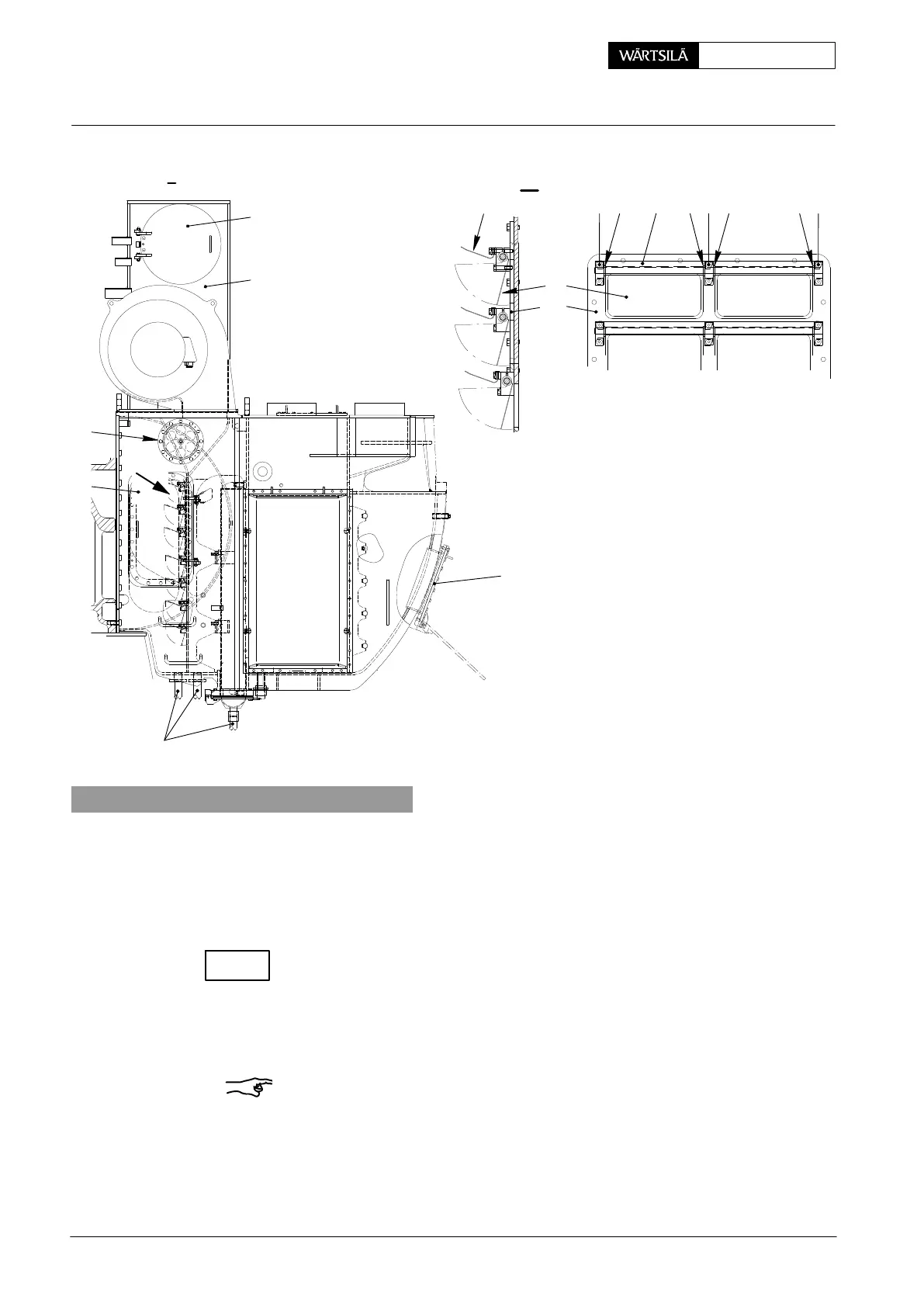
The air flaps 7 in scavenge air receiver
and the fixed support 5 (Fig. ’A’) can be
removed after the screws 11 have
been unscrewed.
11
5
3
12
II
I
10
4
13
7
8 8
9
12
11
1211
12
14
018.183/09
II
WCH01063
2. Cleaning the scavenge air receiver
Scavenge air receiver 2 should be checked for cleanliness at regular intervals (see
03801), however, always after a piston overhaul or after regular maintenance in
the piston underside.
In particular check whether water drain piping 10 from the scavenge air receiver is
not clogged, so that a permanent drainage is assured during operation.
During a major overhaul check O-ring and spring preload of relief valve 9 as fol-
lows:
Gap between metal must be visible (O-ring intact).
Preload distance x must correspond to the value in Fig. ’B’.
If any defect or heavy rust is visible, replace the relief valve.
Remark: Do not open the relief valve with disc springs! In case of any damages or
malfunctions please contact the manufacturer or Wärtsilä Switzerland Ltd.
2013
Checking the Air Flaps and Cleaning the Scavenge Air Receiver
CHECK

Table of Contents

Related product manuals