EasyManua.ls Logo

WinGD WARTSILA RT-flex58T-E - Page 382

WinGD WARTSILA RT-flex58T-E
504 pages
Print Icon
To Next Page IconTo Next Page
To Next Page IconTo Next Page
To Previous Page IconTo Previous Page
To Previous Page IconTo Previous Page
Loading...
Maintenance67081/A1
RT-flex58T-E
Winterthur Gas & Diesel Ltd.
2/ 3
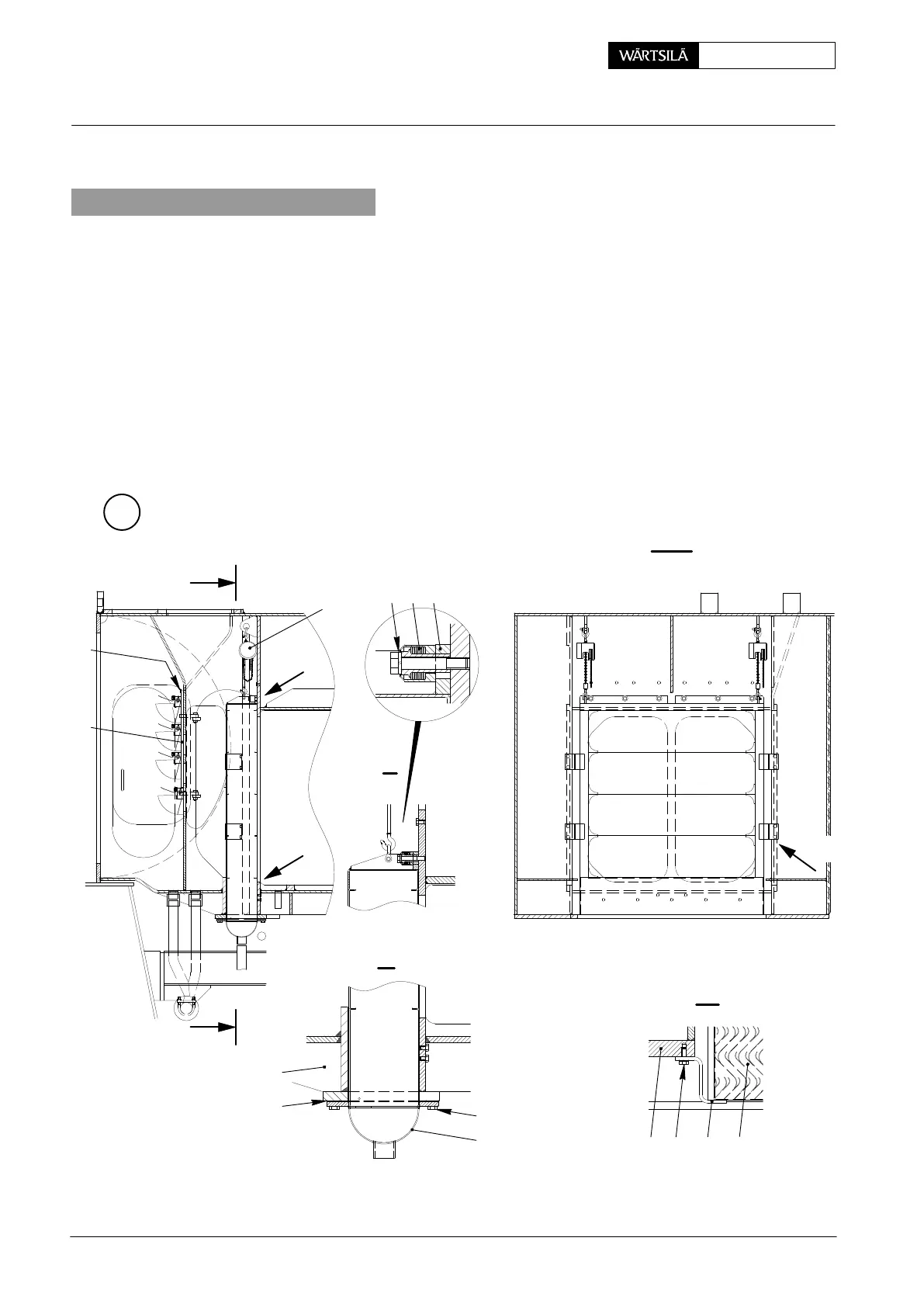
3. Removal
Fasten manual ratchets ’H1’ to the corresponding lugs in the receiver, connect
and tighten them with the water separator.
Remove screws 15 and put both covers 14 with their air flaps 2 fitted (approx.
47 kg each) on the bottom of receiver 1.
Loosen screws 8 and remove them together with plates 7.
Loosen and remove spring packs 9.
Loosen screws 6 on cover 4 to the water separator.
Carefully lower the water separator.
B
018.188/09
I
I - I
I
III
I
I
9310
8,101
7 3
H1
II
III
II
1
5
4
6
14
15
2013
Maintenance of Water Separator 1-part Water Separator

Table of Contents

Related product manuals