EasyManua.ls Logo

Wolf CGB-100 - Eccentric Balanced Flue Installation

Wolf CGB-100
64 pages
Print Icon
To Next Page IconTo Next Page
To Next Page IconTo Next Page
To Previous Page IconTo Previous Page
To Previous Page IconTo Previous Page
Loading...
533062555_201804
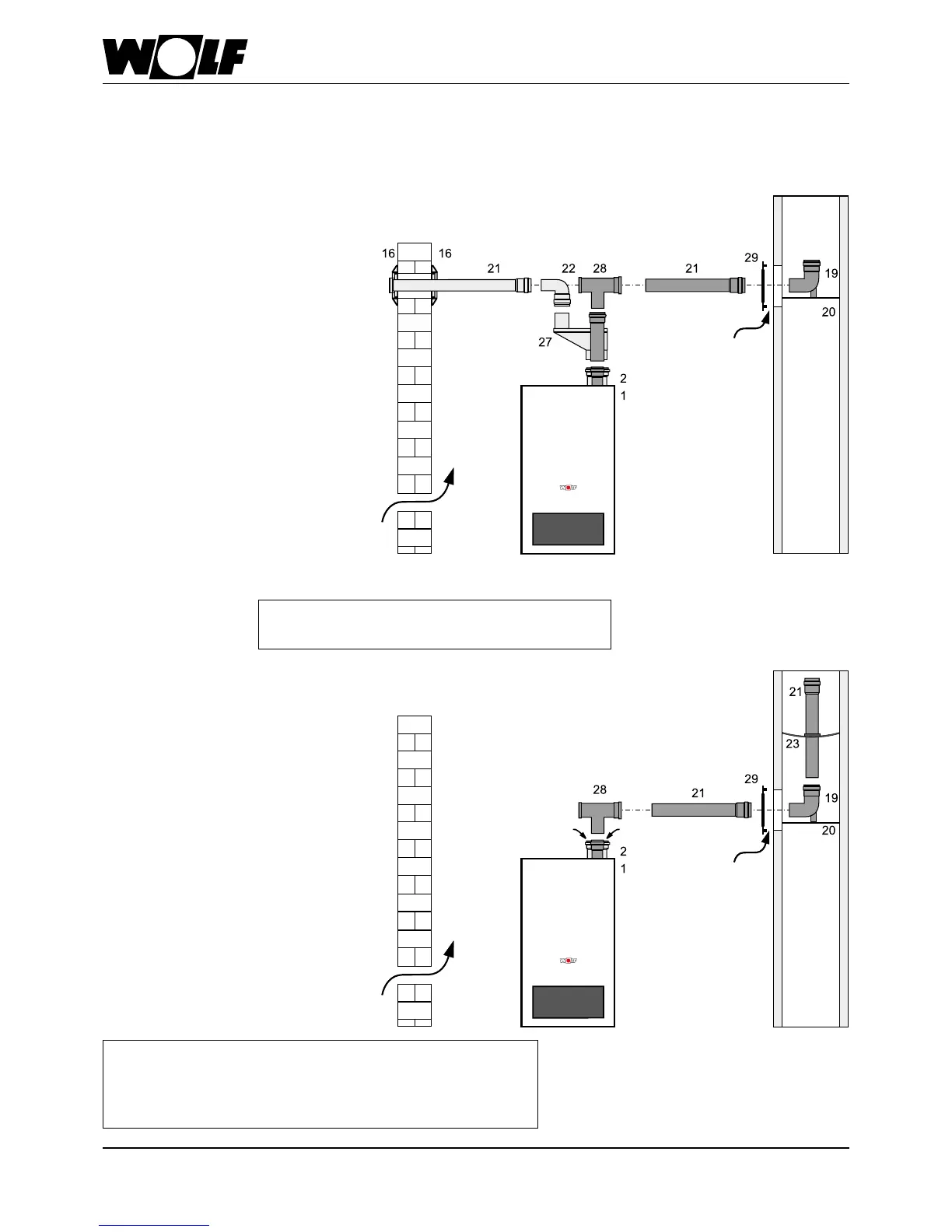
EccentricbalancedueC53,B23
Installthebalanceduedistributor110/110mmeccentrically
(26)foraseparatebalancedue.
WhenconnectingabalanceduecertiedaccordingtoBuilding
Regulations, observe the permit of the relevant body.
1 Gascondensingboiler
2 Gascondensingboilerconnections
DN110/160
19 SupportbendDN110
20 Supportrail
21 FluepipeDN110
500 mm
1000 mm
2000 mm
22 Bend 87° DN 110
23 Spacer
24 Ductcover
27 Balanceduedistributor
110/110 mm
28 Tee87°withinspectionaperture
DN 110
29 VentilationbezelØ110
Downstreamofthesupportbend(19),theuecanberouted
in DN 110 inside the duct.
Installthehorizontaluewithafallofap-
prox. 3° (6 cm/m) towards the boiler. Route
the horizontal air supply with a 3° slope
towardstheoutside–installtheairinletwith
a cowl; permissible wind pressure at the air
inlet 90 Pa. The appliance will not operate
with higher wind pressure.
Maintain the following clearance
between the internal shaft wall and
theue:
For round ducts: 3 cm
for square ducts: 2 cm
Secondary ventilation
B23
Secondary ventilation
C53
Ventilation air aperture for roomsealed operation
accordingtoTRGI150cm²or2x75cm².
Ventilation air in openueoperationinaccordancewithTRGI:
75kW 200cm²
100kW 250cm²
180kW 350cm²
200kW 450cm²
28.Technicalinformation

Other manuals for Wolf CGB-100

Related product manuals