EasyManua.ls Logo

Worcester GB162-80

Worcester GB162-80
72 pages
To Next Page IconTo Next Page
To Next Page IconTo Next Page
To Previous Page IconTo Previous Page
To Previous Page IconTo Previous Page
Loading...
Installation
6720813171 (2015/04) 25
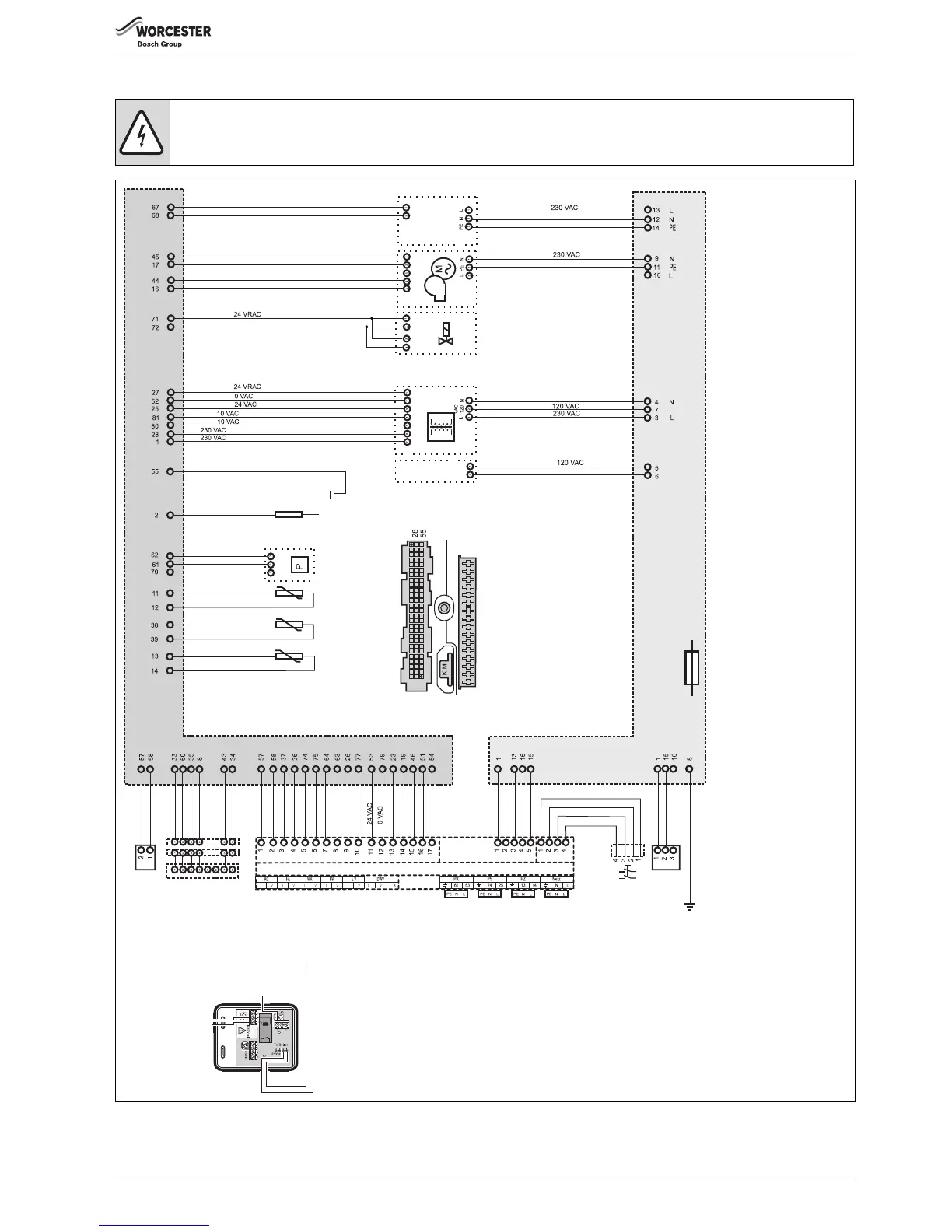
8.5.1 Electrical wiring diagram
Fig. 37 Electrical wiring diagram
WARNING:
▶Do not directly connect a 230 V thermostat to this boiler. Use the grey 230V connection box (supplied with GB162-50/65).
Earth
Ionisation
Pressure
sensor
Return sensor
Safety-temperature sensor
Flow sensor
81-pole connector
Pin 81
Pin 1
Pin 1
Pin 16
16-pole connector
16-pole connector
(AC 120 V and AC 230 V)
81-pole connector
(AC 0, 10, 24 and 230 V)
Connection
for pump in
connection kit
(accessory)
Fan
Gas valve
Transformer
Glow
ignitor
UBA 3.0 mounting base
230 VAC
function modules
230 VAC
function modules
Earth
Mains switch
Mains connection
230 VAC 50Hz,
max. permissible: 10 A
Outdoor-temperature
sensor
On/Off temperature
controller,potential free
DHW sensor
External switch contact
potential free, e.g.
for floor heating
External three-way valve
Switch contact
External connection for professional use
External heating
pump 230 VAC
max. 250 W
DHW pump
230 VAC max. 250 W
DHW circulation pump
230 VAC max. 250 W
green gray lilac white
green gray red turquoiseorange blue
FUSE 5 slow blow
sand filled
Room controller RC
and EMS bus
Connector for
BC10 basic controller
BUS
function modules
b)
The 230 Volt converter is only applicable for Logamax plus GB162-50/65
a) Connection to the external pump is only possible if no internal pump
has been integrated in the connection kit.
Volt free
external control
device
external
230V controls
2
1
b)
a)
230 Volt converter
6720813171-1.1TD
IMPORTANT: The wires in this mains lead are coloured in accordance with the following code: GREEN AND YELLOW - EARTH; BLUE - NEUTRAL; BROWN - LIVEAs the
colours of the wires in the mains lead of the appliance may not correspond with the coloured markings identifying the terminals in your connector proceed as follows:
The wire coloured green and yellow must be connected to the terminal on the connector marked with the letter E or by the earth symbol or coloured green or green-and-
yellow. The wire coloured brown, must be connected to the terminal marked with the letter L or coloured red. The wire coloured blue must be connected to the terminal
marked with the letter N or coloured black.WARNINGTHIS APPLIANCE MUST BE EARTHED. Ensure that your appliance is connected correctly - if you are in any doubt
consult a qualified electrician.For location of individual components, see service section and the exploded views in this manual.

Table of Contents

Other manuals for Worcester GB162-80

Related product manuals