EasyManua.ls Logo

Yanmar 3JH4CE - Replacement of Cup Plugs

Yanmar 3JH4CE
214 pages
Print Icon
To Next Page IconTo Next Page
To Next Page IconTo Next Page
To Previous Page IconTo Previous Page
To Previous Page IconTo Previous Page
Loading...
5. Inspection and Servicing of Basic Engine Parts
94
(6) Clean the surface with the cleaner.
NOTE: Without fail, read the instructions for the color check kit before use.
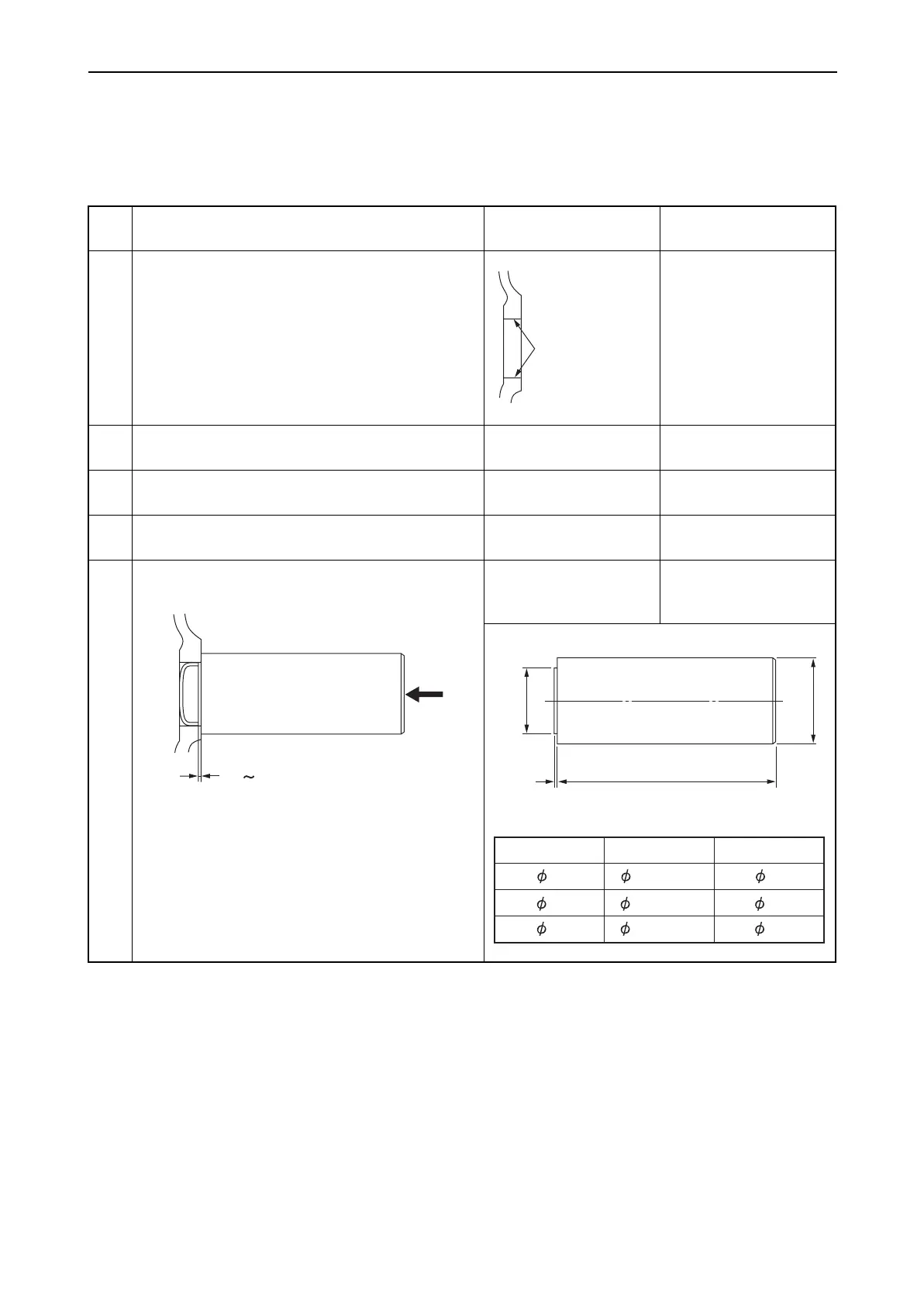
5.1.4 Replacement of cup plugs
Step
No.
Description Procedure Tool of material used
1 Clean and remove grease from the hole into
which the cup plug is to be driven.
(Remove scale and sealing material previously
applied.)
Screw driver or saw
blade
Thinner
2 Remove grease from the cup plug. Visually check the nick
around the plug.
Thinner
3 Apply Threebond No.4 to the seat surface where
the plug is to be driven in.
Apply over the whole
outside of the plug.
Threebond No.4
4 Insert the plug into the hole. Insert the plug so that it
sits correctly.
5 Place a driving tool on the cup plug and drive it in
using a hammer.
*Using the special tool, drive the cup plug so that
the edge of the plug is 2mm (0.0787in) below the
cylinder surface.
Drive in the plug parallel
to the seating surface.
Driving tool
Hammer
Remove foreign
materials with a
screw driver
or saw blade.
2 3 mm
3 mm 100 mm
D
d
Plug dia. d D
mm
12 19.9-12.0 20
30 29.9-30.0 40
50 49.5-50.0 60

Table of Contents

Related product manuals