EasyManua.ls Logo

Yanmar 3JH4CE - Page 189

Yanmar 3JH4CE
214 pages
Print Icon
To Next Page IconTo Next Page
To Next Page IconTo Next Page
To Previous Page IconTo Previous Page
To Previous Page IconTo Previous Page
Loading...
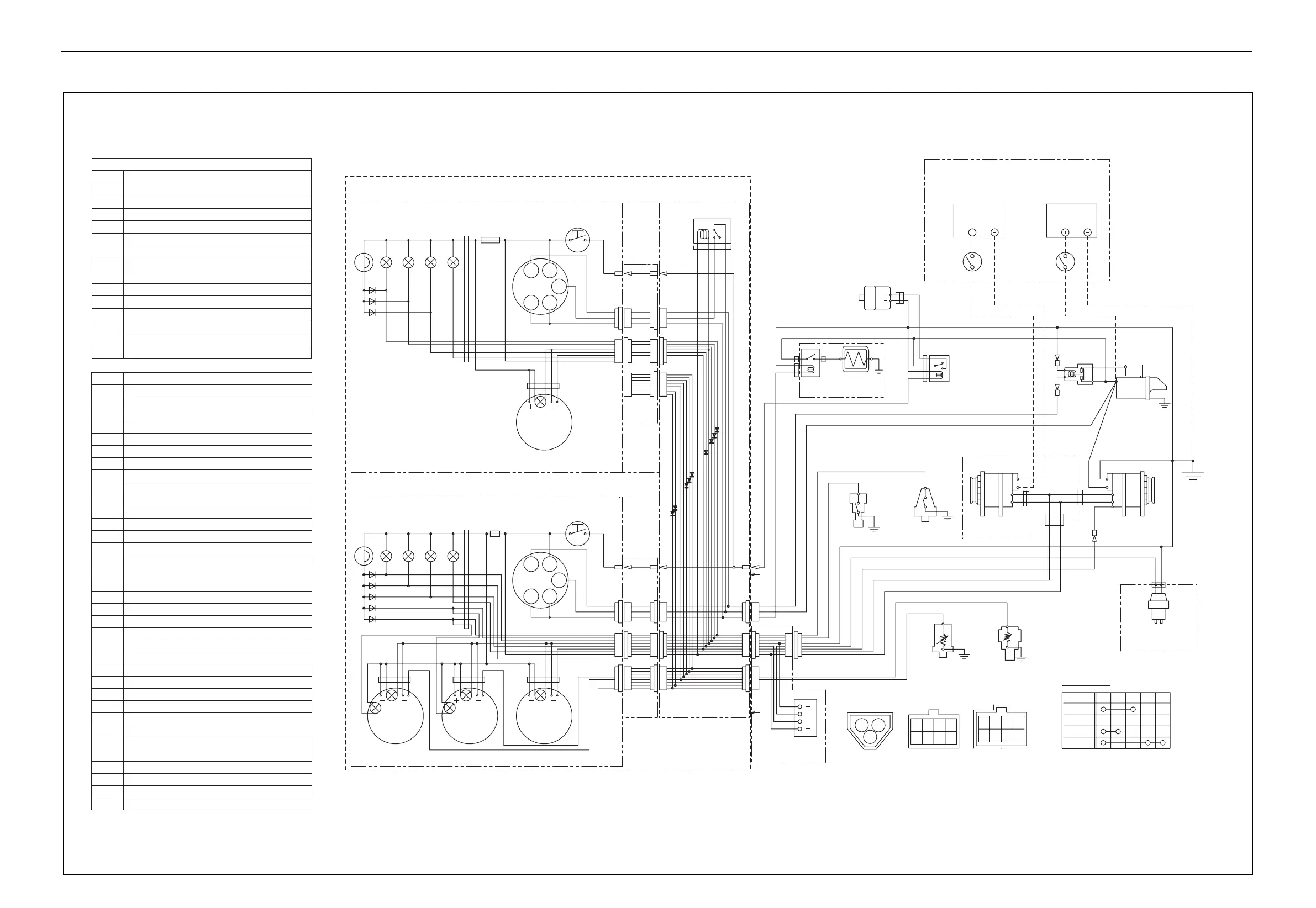
12. Electrical System
173
(2) For C-type instrument panel
(Color coding)
R Red
B Black
W White
L Blue
RB Red / Black
LB Blue / Black
YW Yellow / White
YB Yellow / Black
YG Yellow / Green
WL White / Blue
WB White / Black
WG
GR
White / Green
Green / Red
O Orange
WBr White / Brown
1 Starter switch
2 Stop switch
3 Tachometer / Hour meter
4 Buzzer
5 Lubricating oil low pressure alarm
6 Coolant high temperature alarm
7 Water in sail drive seal alarm
8 Battery low charge alarm
9 Relay (for 2 station : Option)
10 Fuse (3A)
11 Starter switch
12 Stop switch
13 Tachometer / Hour meter
14 Buzzer
15 Lubricating oil low pressure alarm
16 Coolant high temperature alarm
17 Water in sail drive seal alarm
18 Battery low charge alarm
19 Oil pressure meter
20 Coolant temperature meter
21 Air heater (Option)
22 Engine stop solenoid
23 Stop relay
24 Starter relay
25 Starter
26 Coolant high temperature switch
27 Lubricating oil low pressure switch
28 Alternator (Option)
29 Alternator
30 Water in sail drive seal sensor (on sail drive)
31
Water in sail drive seal sensor
Amplifier (Sail drive only)
32
Battery (Option)
33 Battery
34 Oil pressure sensor (Option)
Coolant temperature sensor (Option)35
Alarm lamps
Procured by customer
diodes
YW
4
5678
10
2
1
3
WL YG
WBr
9
3R
R
W
R
L
Wire
harness
L
B
O
P
Instrument panel (sub station) (Option)
17 AC
30
G1G2
LB
Option
1
2
3
1
2
3
Alarm lamps
diodes
YG
14
15 16 17 18
12
11
13
GYG
WBrR
W
Fuse (3A)
R
L
Wire
harness
Wire harness
for sub panel
only for
sail drive
3R 3W
YW WL WG B
RB LB O YG
WB YR Y WR
YB GB G GR
Key switch
GLOW
OFF
ON
START
30 AC G1 G2 17
3L
A
A
31
L
B
O
P
Instrument panel (Main station) (Option)
17 AC
30
G1G2
LB
20
WB
WL
19
YB
YW
B
L
YG
RB
12V
Battery
switch
2R
2B
2B
5R
3L
Relay
Option
Option
WBr
WL
YW
B
W/Y
2R
2W
S
B
3R
10B
10R
Y
O
B
B
E
B
E
R
L
RB
LB
RB
LB
RB
YG
LB
R
L
Earth bol
t
5R
12V
3332
22
21
26
27
YB
WB
34
35
28
29
30
23
24
25
only for
sail drive

Table of Contents

Related product manuals