EasyManua.ls Logo

Yanmar 4JH3BE - 1-2 Wiring diagram

Yanmar 4JH3BE
284 pages
Print Icon
To Next Page IconTo Next Page
To Next Page IconTo Next Page
To Previous Page IconTo Previous Page
To Previous Page IconTo Previous Page
Loading...
::i::~
z;;·
f.FJ~
::i::
2-
; :j·
;~
_:,
<.O
I
w
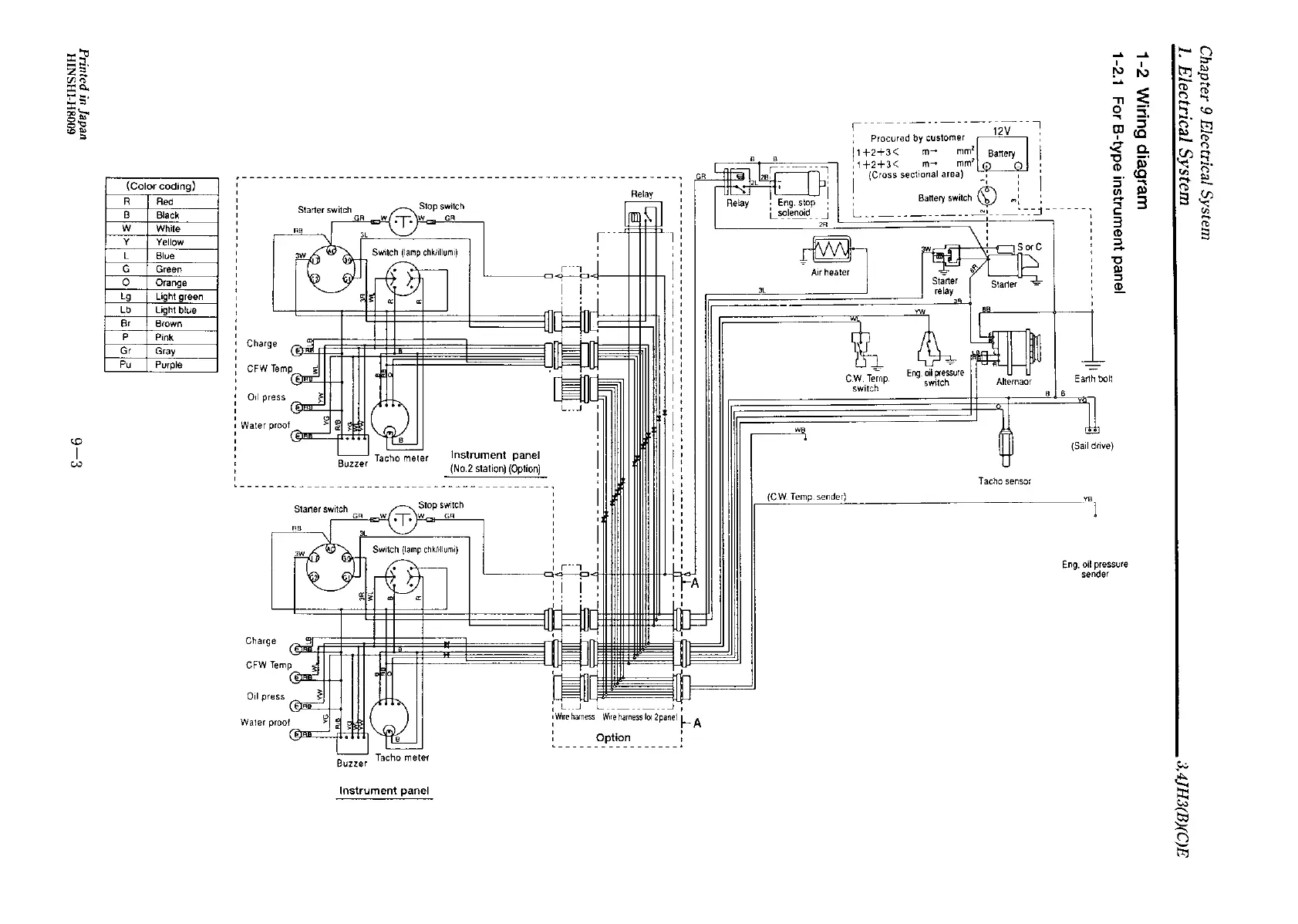
(Color
coding)
R
Red
B
Black
w
White
y
Yellow
L Blue
G
Green
0 Orange
Lg
Light
green
Lb
Light
blue
Br
Brown
p
Pink
Gr
Gray
Pu
Purple
Charge
0,1
press
Water proof
Buzzer
Charge
Oil
press
Buzzer
Instrument
panel
...
.....
~
Q
r!:>
I
tri~
I\)
.._'o
...
(b
....
"TI
:E
~
::;
0 ::,·
q-
~
....,
i,.,..
1 .
-----------12V--:
Cl
::,
!;:;
t:J
,-+
(")
11
+2+3<
m-
mm'
Battery
I
'<
0.
CrJ
...,.
: Procured by customer a ' I
(C
.._
n,
,1+2+3<
m-
mm'
, _
~
~
~
:J.
c~
rn-:-§
I 1
28
;
,-
··
l I ; I ' !Cross sectional area) , , I
IC
~
2
10"\:
~;
(1)'-
Batteryswi1ch
\.Y
~~--
------,
2
3
:3
t
r·-
l
r··7
-------,=i~-9
I
11
I ,
Instrument panel
(No.2
station)
(Option)
~
-
-
L ••
.J
r--7
: L
__
_j-
L.
________
_j
,
:Wi1e
harness
Wire
liarness
loi
2panel
f.-
A
, Option
1
L-----------------•
L
______
----~1-----:_t
,
3
~
CD
:3
a
-0
IU
:::l
,L
---~
I
relav
I
-·-··-
I
m_
(CW
Temp.
sender)
CW.
Temp
switsh
Eng
oil
pressure
switch
Altemaor j Earth boll
B 8
Tacho
sensor
(Sail drive)
'!]l_
Eng.
oil
pressure
sender
s.,,:,
~
~
'@
::::.:::
8
t'rl

Table of Contents