EasyManua.ls Logo

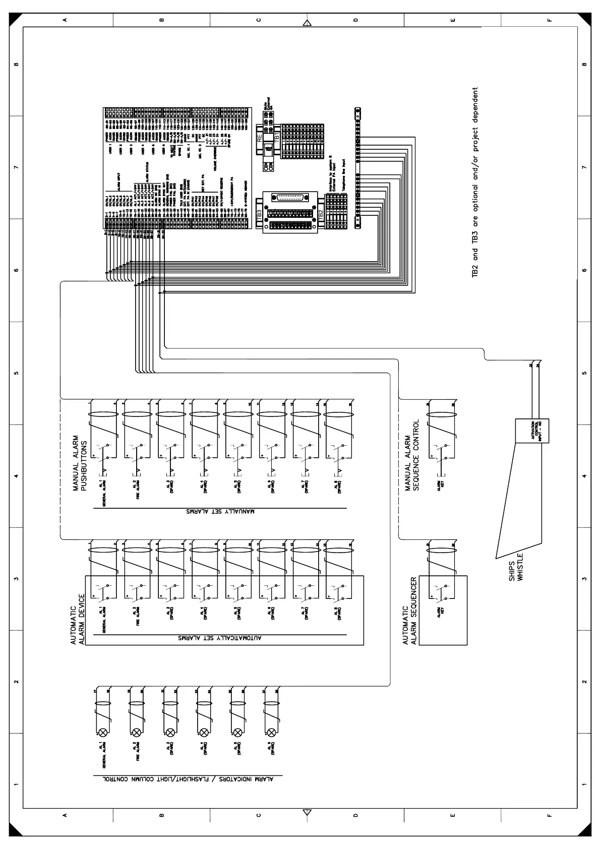
Zenitel Phontech MPA 1601 - Of 8: Alarm Control Inputs and Outputs - Single & Dual System A

Default Icon
91 pages
Print Icon
To Next Page IconTo Next Page
To Next Page IconTo Next Page
To Previous Page IconTo Previous Page
To Previous Page IconTo Previous Page
Loading...
Handbook page
47 of 89

Table of Contents

Related product manuals