EasyManua.ls Logo

Zenitel Phontech MPA 1601 - Page 87

Default Icon
91 pages
Print Icon
To Next Page IconTo Next Page
To Next Page IconTo Next Page
To Previous Page IconTo Previous Page
To Previous Page IconTo Previous Page
Loading...
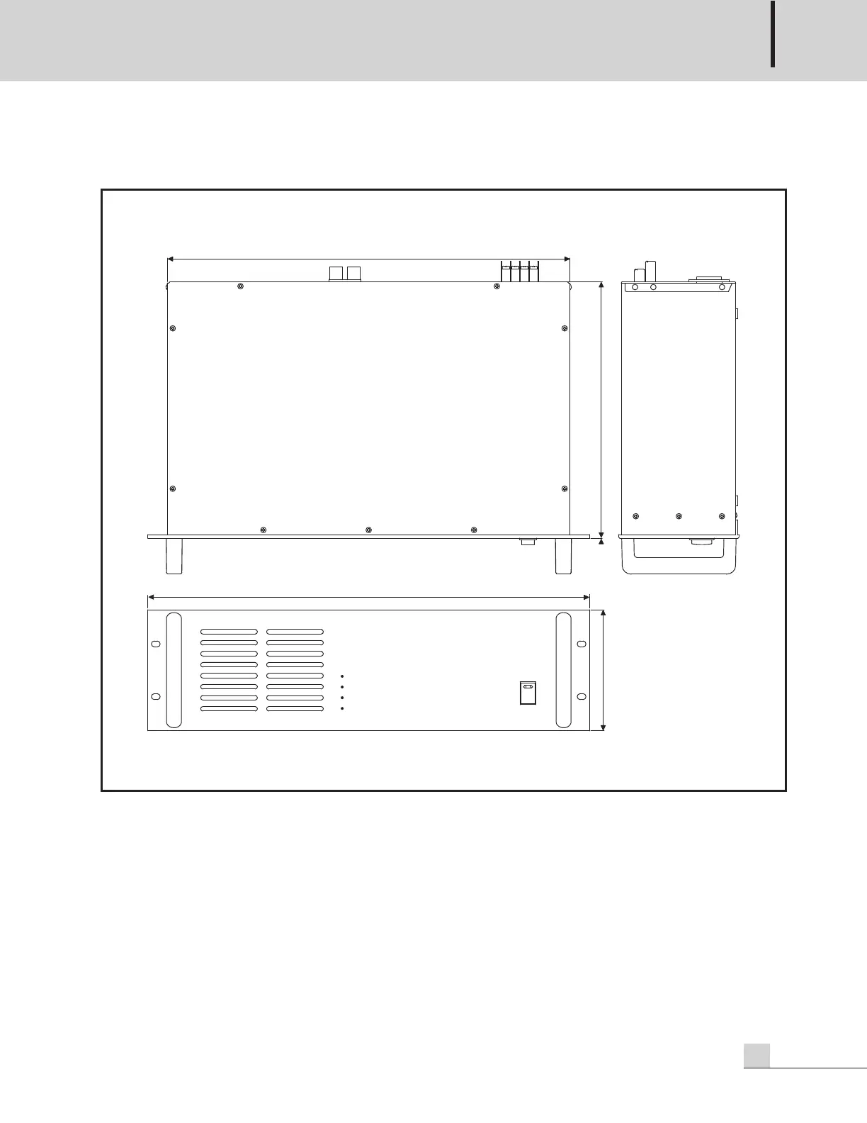
PUBLIC ADDRESS POWER AMPLIFIER
11
PA-6312/6324/6336/6348
440
280
132
482
DIMENSIONS
Handbook page
85 of 89

Table of Contents

Related product manuals