EasyManua.ls Logo

ABB 500 - Connection Diagram 2

ABB 500
76 pages
Print Icon
To Next Page IconTo Next Page
To Next Page IconTo Next Page
To Previous Page IconTo Previous Page
To Previous Page IconTo Previous Page
Loading...
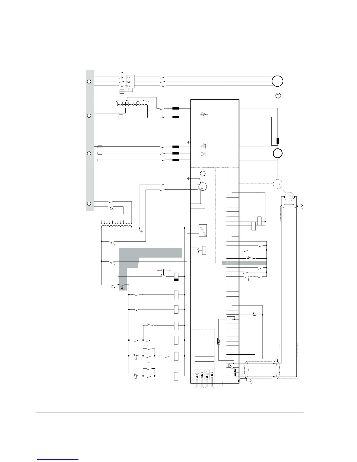
Appendix A - Connection diagrams
IV A A - 2 DCS 500B / DCP 500B Operating Instructions
Connection diagram 2
For detailed information see
System description DCS 500B / DCF 500B.
IN3
OUT3
IN1
OUT1
V5
V6
V1
V2
X96:
DO8
12 X99:12 X2:45 X2:1 2 3
U1 W1V1 PE
K1
F6
K20
K21K20 K3 K1
X96:1
X96:2
L1 L2 L3
F1
F3
K3
13
24
M
~
T3
F2
3
4
1
2
T2
690V
660V
600V
575V
525V
500V
450V
415V
400V
380V
115V
230V
K15
K15
S1
1
2
K6 K8
X2:4
X2:5
K11
K10
K21
500V
460V
415V
400V
365V
350V
265V
250V
90V
60V
30V
X33
C 1 D 1
AITAC AI1
AI2 AI3
AI4
+10V -10V AO1 AO2 IACT DI1 DI2 DI3 DI4 DI5 DI6 DI7 DI8 +48V DO1 DO2 DO3 DO4 DO5 DO6 DO7
__ __
_
++++
+
T
T
M
0V
0V0V0V0V
X3: 1 2 3 4 5 6 7 8 9 10 X4: 1 2 3 4 5 6 7 8 9 10 X6: 1 2 3 4 5 6 7 8 9 10
X7:
12345678 1...10
X5:
+
_
+
_
K1
K20
K21
K6
K8
1
2
S1
K11
K10
S4
56
2
46
1
35
K6
F5
1
2
F8
1
2
F7
1
2
2
1
4
3
6
5
F6
I > I > I >
13
14
U
V
W
M
3~
K1
135
246
L1
1
2
3
4
K8
13
14
X1: 1 7
L3
X1: 5 3
+
_
L1 N L1 N L1 L2 L3
Voltage levels
see description
A C D E
Communication
board (COM-x)
Control board (CON-2)
Power supply
(POW-1)
Converter
module
ON
OFF STOP
START
EMER.
STOP
Field exciter unit
(SDCS-FEX-1/2)
depending on the unit type
an other configuration is possible
the polarities are shown for motor operation
if there are intermediate terminals
e.g. Pressure
switch at C4
module

Table of Contents

Related product manuals