EasyManua.ls Logo

ABB AC 800M - Power Supply Supervision

ABB AC 800M
230 pages
Print Icon
To Next Page IconTo Next Page
To Next Page IconTo Next Page
To Previous Page IconTo Previous Page
To Previous Page IconTo Previous Page
Loading...
Power Supply Supervision Section 2 Installation
82 3BSE 027 941 R301
Power Supply Supervision
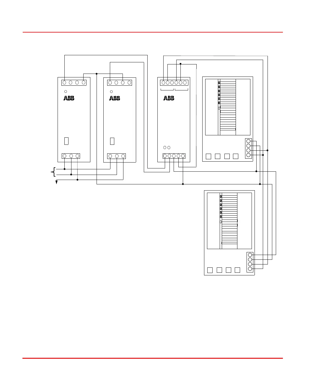
The status of power supplies in redundant configuration can be supervised via the
SS822 voting unit. The supervision signals SA and SB from the SS822 are
connected to the corresponding terminals of the CPU.
Figure 20. Redundant Power Supply Powering Redundant CPUs
OK F
OK
A+ B+ L+
SS822
F
+
+
AB
L+ L–
L+ L+ L– L–
NLPE
OK
SD821
L+ L+ L– L–
NLPE
OK
SD821
PM861
L+
L–
SA
SB
PM861
L+
L–
SA
SB
Protective Ground
From Mains
Breaker

Table of Contents

Other manuals for ABB AC 800M

Related product manuals