EasyManua.ls Logo

ABB ACS880+N5350 - Page 208

ABB ACS880+N5350
247 pages
Print Icon
To Next Page IconTo Next Page
To Next Page IconTo Next Page
To Previous Page IconTo Previous Page
To Previous Page IconTo Previous Page
Loading...
Dimensions B-93AXD50000011888
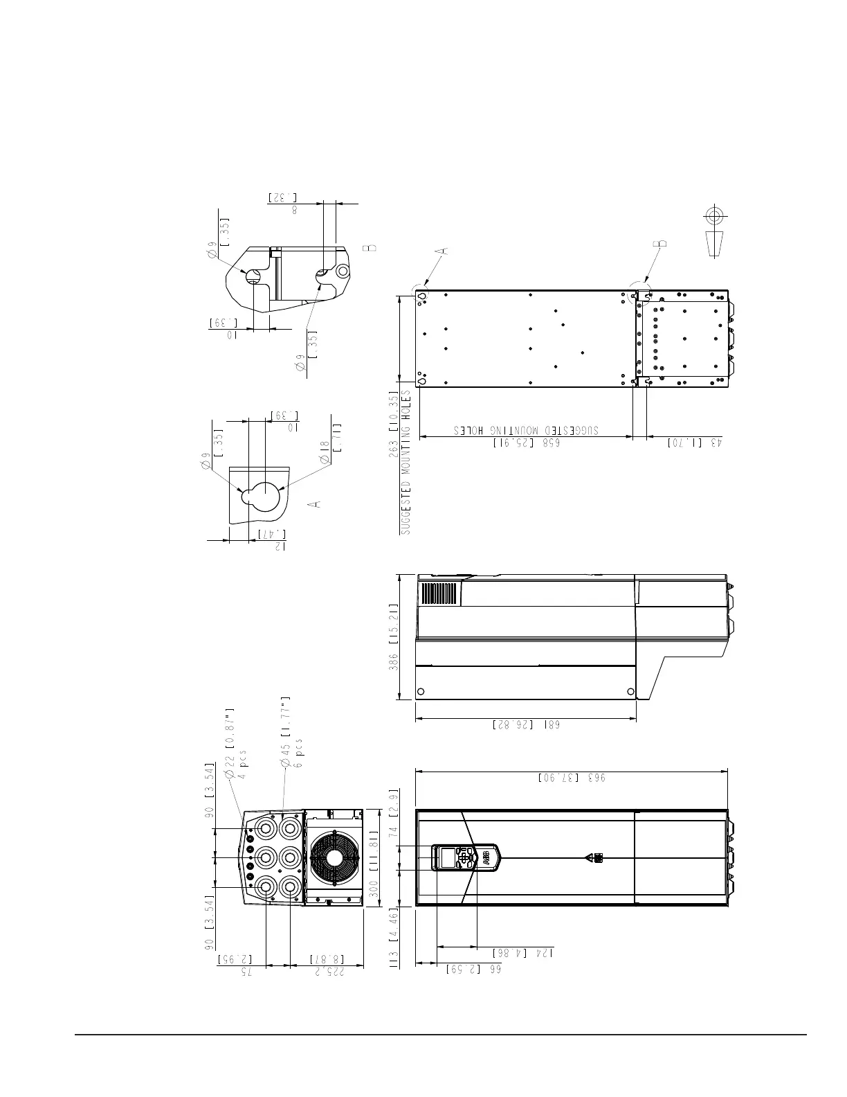
Figure B-8 Frame R8 (IP21, UL Type 1)
Frame R8 (IP21, UL Type 1)
3AUA0000073150

Table of Contents