EasyManua.ls Logo

ABB AK101 - 4 Mechanical Installation

ABB AK101
52 pages
Print Icon
To Next Page IconTo Next Page
To Next Page IconTo Next Page
To Previous Page IconTo Previous Page
To Previous Page IconTo Previous Page
Loading...
8
366 (14.4)
Katharometer
Intrinsically
Safe Circuits
Signal
Conventional
Circuits
Cable
Entry
Mounting Panel
Thickness
6 (0.24) max.
346 (13.62)
30 (1.18)
Mounting Panel
Display Face
350 0.5 (13.780.2)
(Cutout)
Panel Cutout and
Mounting Requirements
Area For
Clamping
Cams
50
(1.97)
70
(2.76)
3 (0.12)
278 0.5 (10.940.2)
(Cutout)
%H2 IN CO2
95.0
290 (11.4)
30 (1.18)
227 (8.94)
%H2 IN AIR
95.0
Power
Input
1
2
3
Not Fitted
to AK104
3 (0.12)
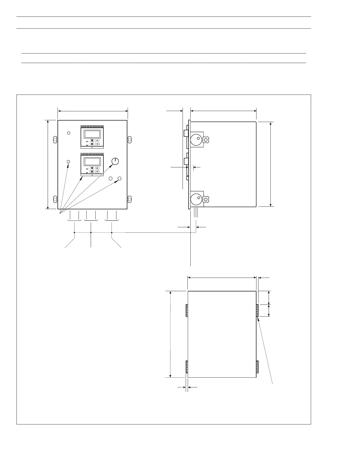
4.1 Locating and Mounting System Items
4.1.1 Models AK101 and AK104 Display Unit – Fig. 4.1
Note. The display unit must be located in the safe area of the application plant in a sheltered interior environment.
The display unit is designed for panel-mounting in a position to suit reading of the displays and with access to the rear for electrical
interconnections. The panel preparation requirements and installation dimensions are shown in Fig. 4.1. The display unit is secured
to the panel by four adjustable cam brackets – two each side of the unit chassis.
4 MECHANICAL INSTALLATION
Fig. 4.1 Installation Dimensions – Model 6553 Display Unit
Dimensions in mm

Related product manuals