EasyManua.ls Logo

ABB T Series - Page 50

ABB T Series
61 pages
Print Icon
To Next Page IconTo Next Page
To Next Page IconTo Next Page
To Previous Page IconTo Previous Page
To Previous Page IconTo Previous Page
Loading...
50
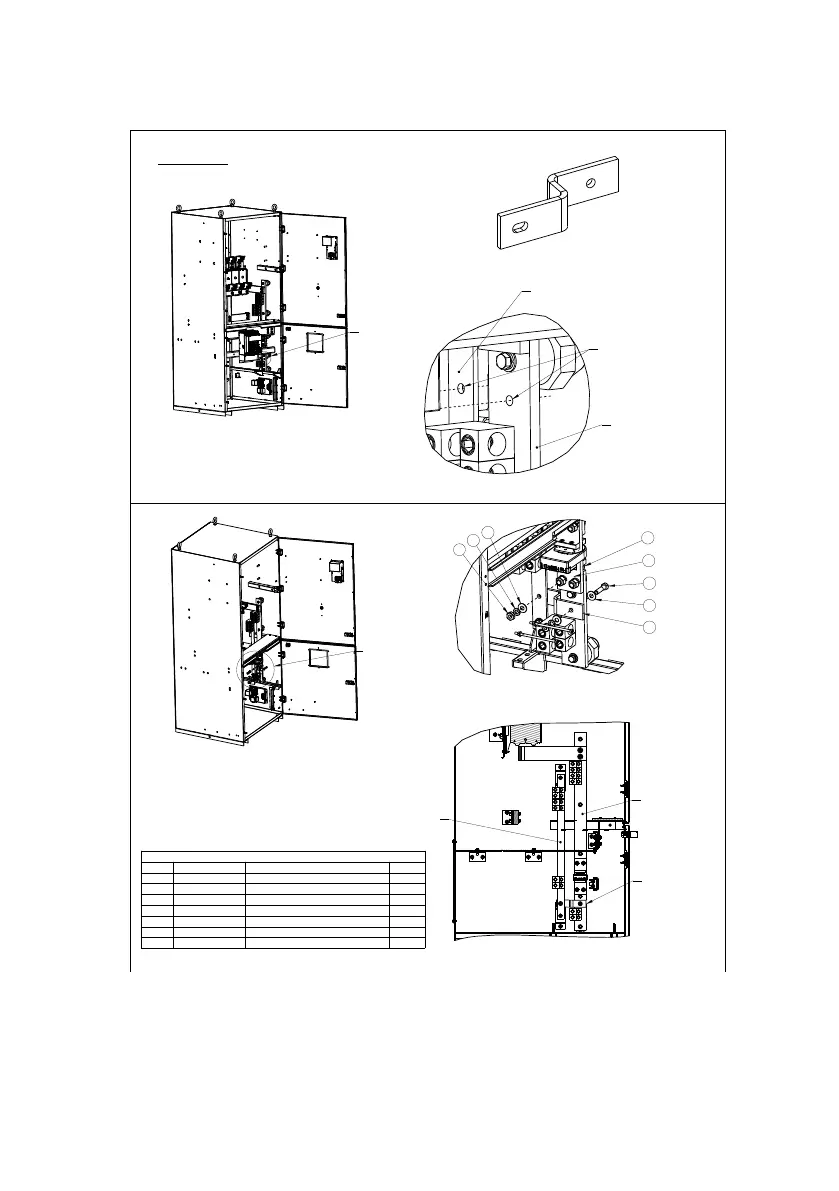
Zenith ZTGSE/ZTSSE 30-2500A ATS, USER MANUAL
BILL OF MATERIAL
ITEM PART NUMBER DESCRIPTION QTY
1 HMH-28 3/8-16 HEAVY HEX JAM NUT 2
2 HMH-87 3/8 SPLIT LOCK WASHER 2
3 HMH-90 3/8 X .875 BRASS WASHER 4
4 HMH-339 3/8-16 X 1.25 HEX HD C/S 1
5 HMH-340 3/8-16 X 1.50 HEX HD C/S 1
6 S-1700 BONDING BAR-800-1200A 1
7 V-2508 LABEL-SERVICE DISCONNECT 1
USE BONDING BAR SUPPLIED WITH THE EQUIPMENT
800-1200A
SEE DETAIL E
STEP 1:
OPEN THE TOP AND BOTTOM DOOR.
MOUNTING LOCATION SHOWN FOR BONDING BAR
GROUND BAR
ASSEMBLY
NEUTRAL BAR
ASSEMBLY
HOLES FOR MOUNTING
THE BONDING BAR
DETAIL E
GROUND BAR
ASSEMBLY
NEUTRAL BAR
ASSEMBLY
BONDING BAR
VIEW SHOWING BONDING BAR CONNECTION
STEP 2:
ASSEMBLE THE BONDING BAR BETWEEN
GROUND BAR AND NEUTRAL BAR ASSEMBLY.
PARTS HIDDEN FOR REPRESENTATION PURPOSE
SEE DETAIL F
2
3
3
5
4
3
1
DETAIL F
TORQUE
312 in-lbs
2 PLCS
6