EasyManua.ls Logo

Addison PR Series - Page 44

Addison PR Series
84 pages
Print Icon
To Next Page IconTo Next Page
To Next Page IconTo Next Page
To Previous Page IconTo Previous Page
To Previous Page IconTo Previous Page
Loading...
Page 44 of 84
131
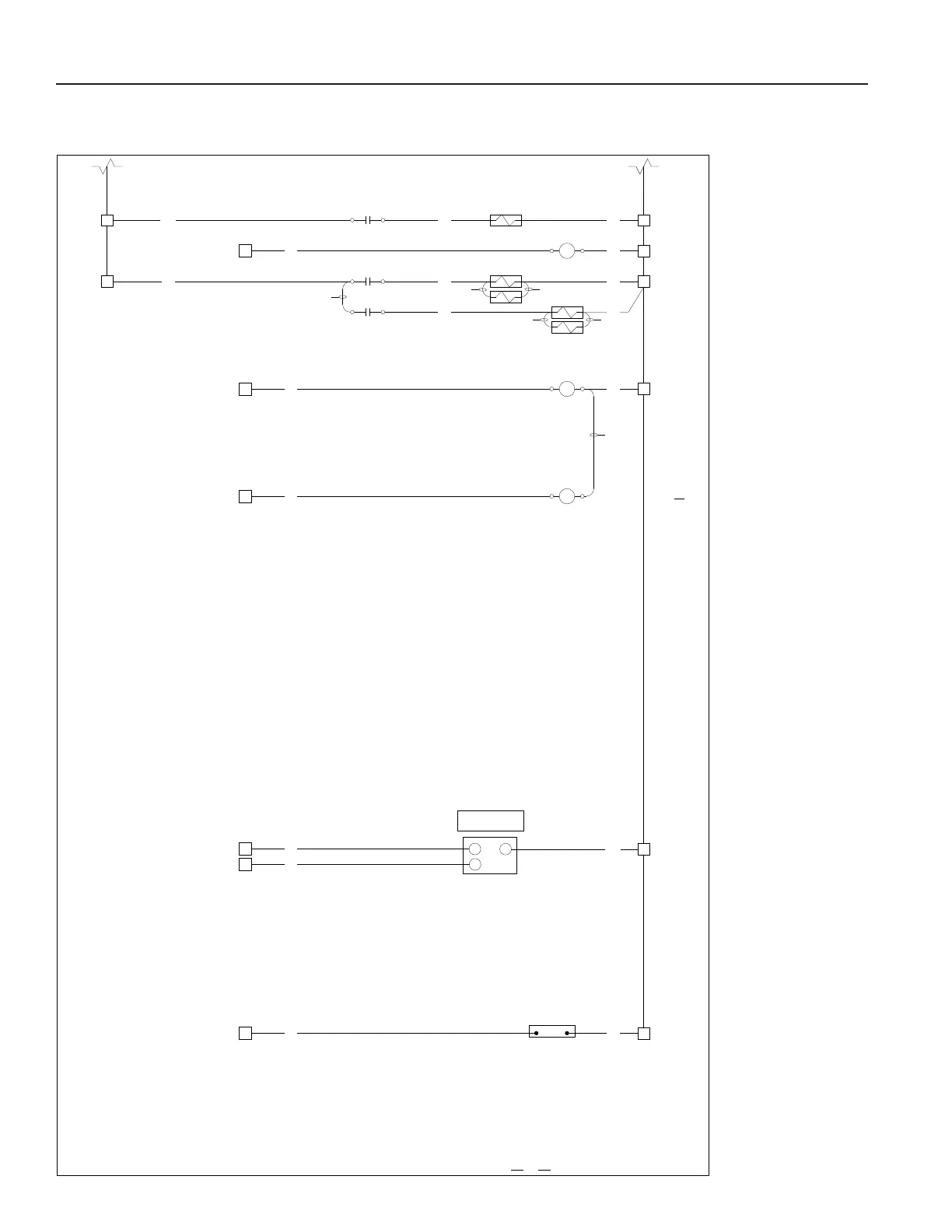
WIRINGDIAGRAM#PrelimWD|PROA180B2A3DEBDBB2B|230360|SHEET3OF7|12/10/19DWNCHK.
132
133
134
135
136
137
138
139
140
141
142
143
144
145
146
147
148
149
150
151
152
153
154
155
156
157
158
159
160
161
162
163
164
165
166
167
168
169
170
171
172
173
174
175
176
177
178
179
180
181
182
183
184
185
186
187
188
189
190
191
192
193
194
195
TB1
TB1
TB1
BOS1TB1
Elec.HeatEnable
TB1
TB1
363
TB1
TB1
TB1
TB1
R
EnableOutdoorAirDamperActuator OD PR BL
CONTINUEDONSHEET2
BL
Enable1
st
StageHeating
Enable2
nd
StageHeating
W
GY
W1
W2
Seeseparate2Stage
Elec.HeaterDrawing
W2
W1
C
SF1REnableSupplyFan
EnableHotGasReheat RH PR RHR
1413
BL
134,210
RHR
BLBK
12 8
BL
SSR
1413
SSR
R
32
C
C
C
Y
5
EnableSwitchableSubcooling
O
8
R C
OADA
BKR
24VAC
OADA
138
LSS2B
138,140
N.C.
N.O.
LSS2A
BL
O BL
12
N.C.
N.O.
LSS1A
BL
Y
BL
9
RR
TB1
SC GY SSR
1413
BL
C
C
LSS1B
PKG
Figure 17c: Typical Electrical Wiring Diagram
PR Series Installation, Operation, and Maintenance Manual

Table of Contents

Related product manuals