EasyManua.ls Logo

AEG SWB61501DG - Installation

AEG SWB61501DG
Print Icon
To Next Page IconTo Next Page
To Next Page IconTo Next Page
To Previous Page IconTo Previous Page
To Previous Page IconTo Previous Page
Loading...
65
FRANÇAIS
POSITIONNEMENT
Veillezàcequel'aircirculelibrement
autourdel'appareiland'évitertoute
surchauffe.Pourassureruneventilation
sufsante,respectezlesinstructions
d'installation.
Installezcetappareildansunendroit
oùlatempératureambiantecorrespond
àlaclasseclimatiqueindiquéesurla
plaquesignalétiquedel'appareil:
BRANCHEMENTÉLECTRIQUE
ATTENTION !
Neconezlestravauxélectriques
devotrehabitationnécessaires
àl'installationdevotreappareil
qu'àunélectricienqualié.
Classe
climatique
Température
ambiante
SN +10°Cà+32°C
N +16°Cà+32°C
ST +16°Cà+38°C
T +16°Cà+43°C
ATTENTION !
Cetappareildoitêtrereliéàla
terre.Lefabricantdéclinetoute
responsabilitéencasdenon-
respectdecesconsignesde
sécurité.
Consultezunélectricienouuntechnicien
qualiésivousnecomprenezpas
complètementlesinstructionsdemise
àlaterreousivousavezdesdoutes
quantàlamiseàlaterredel'appareil.
Avantdebrancherl'appareil,assurez-
vousquelatensionetlafréquence
indiquéessurlaplaquesignalétique
correspondentàcellesdevotreréseau
électriquedomestique.
ATTENTION !
Nousvousrecommandons
d'attendre4heuresavantde
brancheretd'installerl'appareil
pourpermettreauuide
frigorigènederetournerdans
lecompresseur.
L'appareildoitêtrereliéàlaterre.
Lacheducordond'alimentationest
fournieavecuncontactàcetten.
Silaprisedecourantn'estpasmise
àlaterre,branchezl'appareilàune
miseàlaterreséparéeconformeaux
réglementationsenvigueur.
Consultezunélectricienqualié.
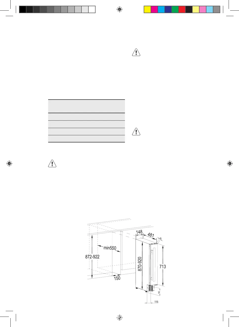
INSTALLATION
DIMENSIONSD'INSTALLATION(MM)
ETEXIGENCESDEVENTILATION
SWB61501DG-SWE61501DG_Wine_cellar_AEG_CZ_DA_EN_FI_FR_IT_NO_PL_RU_SK_SV_UK.indd 65 2017-06-28 10:06:02

Table of Contents

Related product manuals