EasyManua.ls Logo

AEG SWB61501DG - Installazione

AEG SWB61501DG
Print Icon
To Next Page IconTo Next Page
To Next Page IconTo Next Page
To Previous Page IconTo Previous Page
To Previous Page IconTo Previous Page
Loading...
ITALIANO
79
LUOGOD'INSTALLAZIONE
Èimportantegarantireun'adeguata
circolazioned'ariaintorno
all'apparecchiatura,perevitareun
possibilesurriscaldamento.Perottenere
un'aerazionesufciente,seguirele
relativeistruzionidiinstallazione.
Installarel'apparecchiaturainunluogo
lacuitemperaturaambientecorrisponda
allaclasseclimaticaindicatasulla
targhettadeidatidell'apparecchiatura:
COLLEGAMENTOELETTRICO
ATTENZIONE!
Sesirendessenecessariauna
modicaall'impiantoelettricoper
l'installazionedell’apparecchiatur
a,l’interventodovràessereeffet-
tuatodapersonalequalicatoe
competente.
Classe
climatica
Temperatura
ambiente
SN da+10°Ca+32°C
N da+16°Ca+32°C
ST da+16°Ca+38°C
T da+16°Ca+43°C
AVVERTENZA!
Questaapparecchiaturadeve
esserecollegataallamessaa
terra.Ilcostruttoredeclinaogni
responsabilitàqualoranonsiano
rispettatelenormedisicurezza.
Consultareunelettricistaqualicatoo
unaddettoseleistruzioniperlamessa
aterranonsonostatecompreseappieno
oincasodidubbisull'adeguatamessa
aterradell'apparecchiatura.
Primadiinserirelaspina,vericareche
latensioneelafrequenzariportatesulla
targhettadeidaticorrispondanoaquelle
dell'impiantodomestico.
AVVERTENZA!
Siconsigliadiattendere4ore
primadicollegareedinstallare
l'apparecchiaturaperpermettere
alrefrigerantediuirenuovamente
nelcompressore.
Questaapparecchiaturadeveessere
collegataallamessaaterra.
Laspinadelcavodialimentazione
èdotatadiunappositocontatto.
Selapresadicorrentenonèmessa
aterra,collegarel’apparecchiatura
adundispositivoditerraseparato
conformementeallenormativevigenti.
Rivolgersiaunelettricistaqualicato.
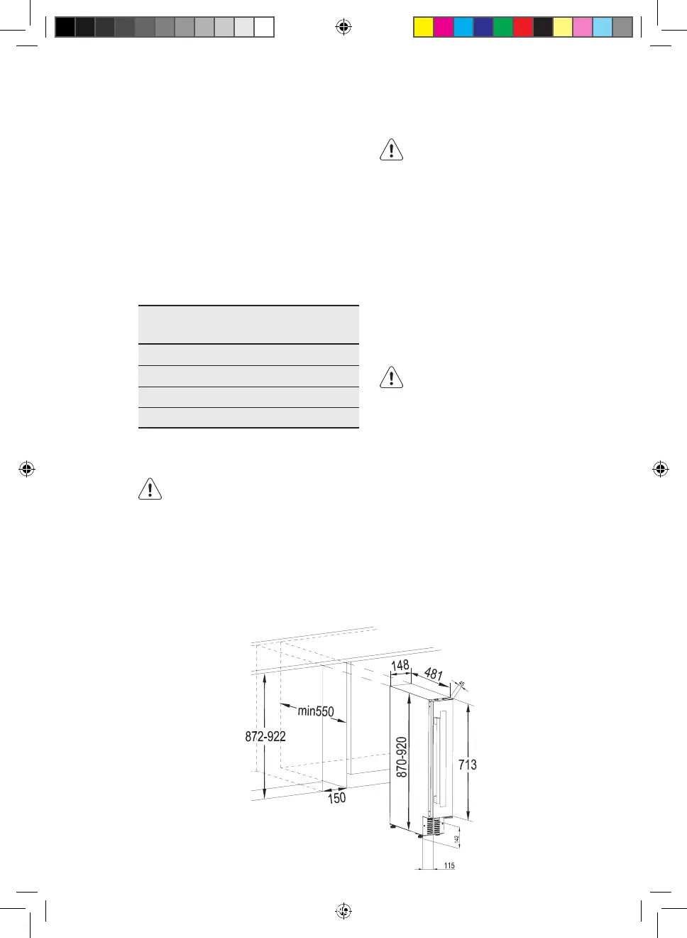
INSTALLAZIONE
DIMENSIONIDIINSTALLAZIONE(INMM)
EREQUISITIDIVENTILAZIONE
SWB61501DG-SWE61501DG_Wine_cellar_AEG_CZ_DA_EN_FI_FR_IT_NO_PL_RU_SK_SV_UK.indd 79 2017-06-28 10:06:04

Table of Contents

Related product manuals