EasyManua.ls Logo

AERMEC ANK050 HP - Hydraulic Connection; Ank 030-045-050 H; Ank 030-045-050 Ha

AERMEC ANK050 HP
48 pages
Print Icon
To Next Page IconTo Next Page
To Next Page IconTo Next Page
To Previous Page IconTo Previous Page
To Previous Page IconTo Previous Page
Loading...
EN
11_11. 6755532_02
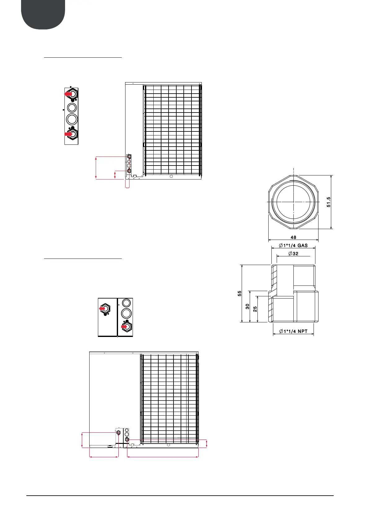
235 mm
9 in
110 mm
4 in
53.6 mm
2.1 in
IN
OUT
Ø 1”¼
Ø 1”¼

 
 
 
205 mm
8 in
389 mm
15 in
503 mm
20 in
110 mm
4 in
IN
OUT
Ø 1”¼
Ø 1”¼
Reducer for connection
STANDARD SUPPLIED

Table of Contents

Related product manuals