EasyManua.ls Logo

AES 7788F - Trouble Annunciator Connection; 3.5.2 Trouble Annunciator

AES 7788F
43 pages
Print Icon
To Next Page IconTo Next Page
To Next Page IconTo Next Page
To Previous Page IconTo Previous Page
To Previous Page IconTo Previous Page
Loading...
AES 7788 Series RF Subscriber Unit Installation and Operation Manual
AES Corporation 21 40-7788, Rev 6, August 30, 2016
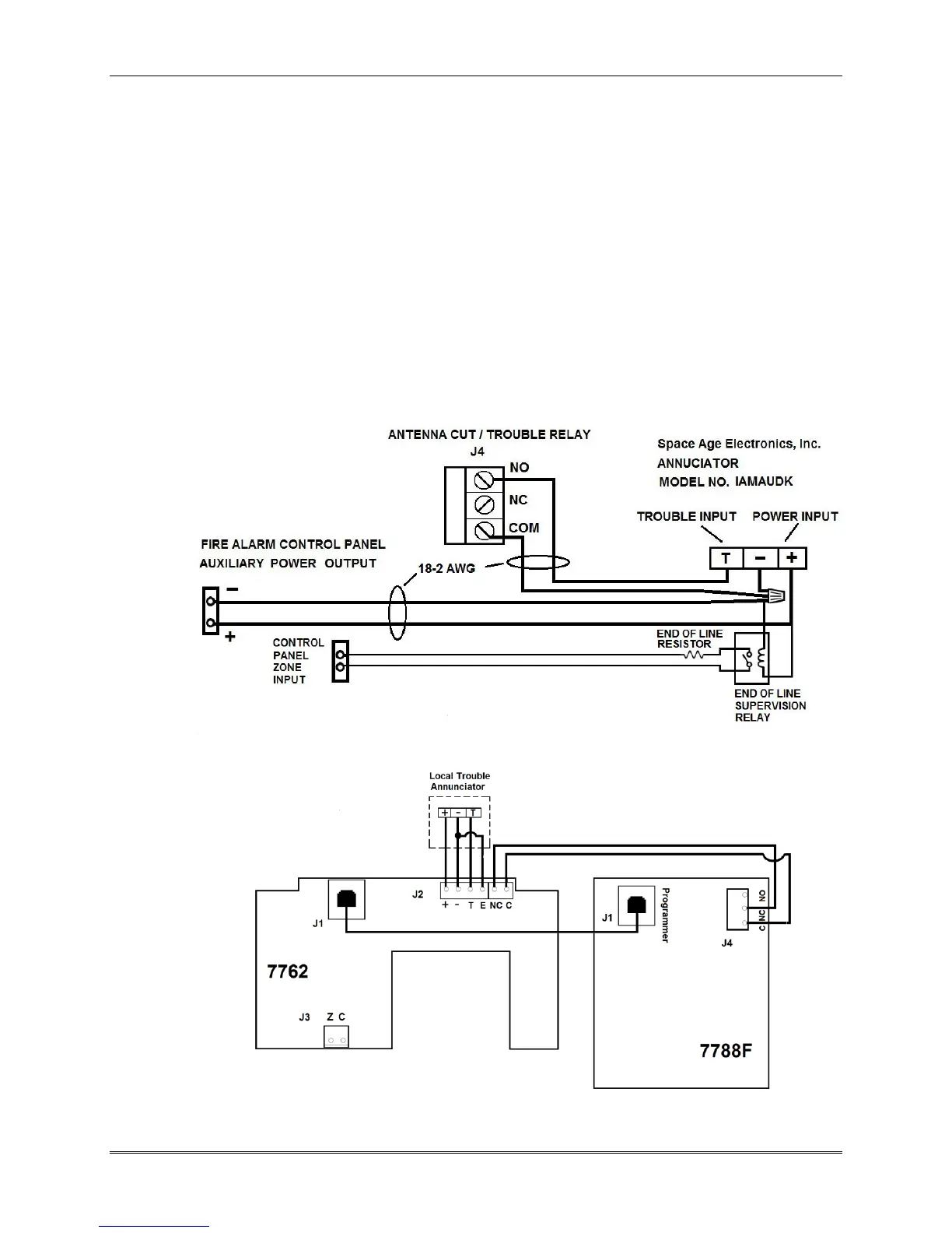
3.5 Wiring Antenna Cut / Trouble Output (J4) (Continued)
Trouble Annunciator
The AES 7740 Local Annunciator is the Space Age Electronics, Inc. Infinity Series Model IAMAUDK
or IAMAUDR annunciator. This annunciator may be used to locally indicate Subscriber trouble
condition using Trouble Output J4.
Connect the Model IAMAUDK/IAMAUDR annunciator as shown in Diagram 4A below. Refer to the
IAMAUDK/IAMAUDR Installation Instructions P/N LT10452 for details on how to install the product
within the constraints of its Listing. The IAMAUDK/IAMAUDR Input power (terminals +, -) 21 30
Vdc, 65mA max. The input power must be sourced from a Listed UL 864 FACP with a compatible
power output circuit or UL1481 Power Supply Listed for fire protection.
The End of Line Supervision Relay must be Listed for UL 864 and input power rated for the
application. The FACP must be Listed for UL 864 and input zone programmed for trouble with the
correct End of Line resistance per its Listing.
The IAMAUDK is shown for illustrative purposes.
Diagram 4A IAMAUDK Annunciator Wiring To J4 Antenna Cut / Trouble Relay
Diagram 4B 7788F Powering IAMAUD Annunciator Using 7762 Hardware Supervisor

Table of Contents