EasyManua.ls Logo

Allen-Bradley 1756-IB16 - 1756-Oa8 D

Allen-Bradley 1756-IB16
258 pages
To Next Page IconTo Next Page
To Next Page IconTo Next Page
To Previous Page IconTo Previous Page
To Previous Page IconTo Previous Page
Loading...
154 Rockwell Automation Publication 1756-UM058G-EN-P - November 2012
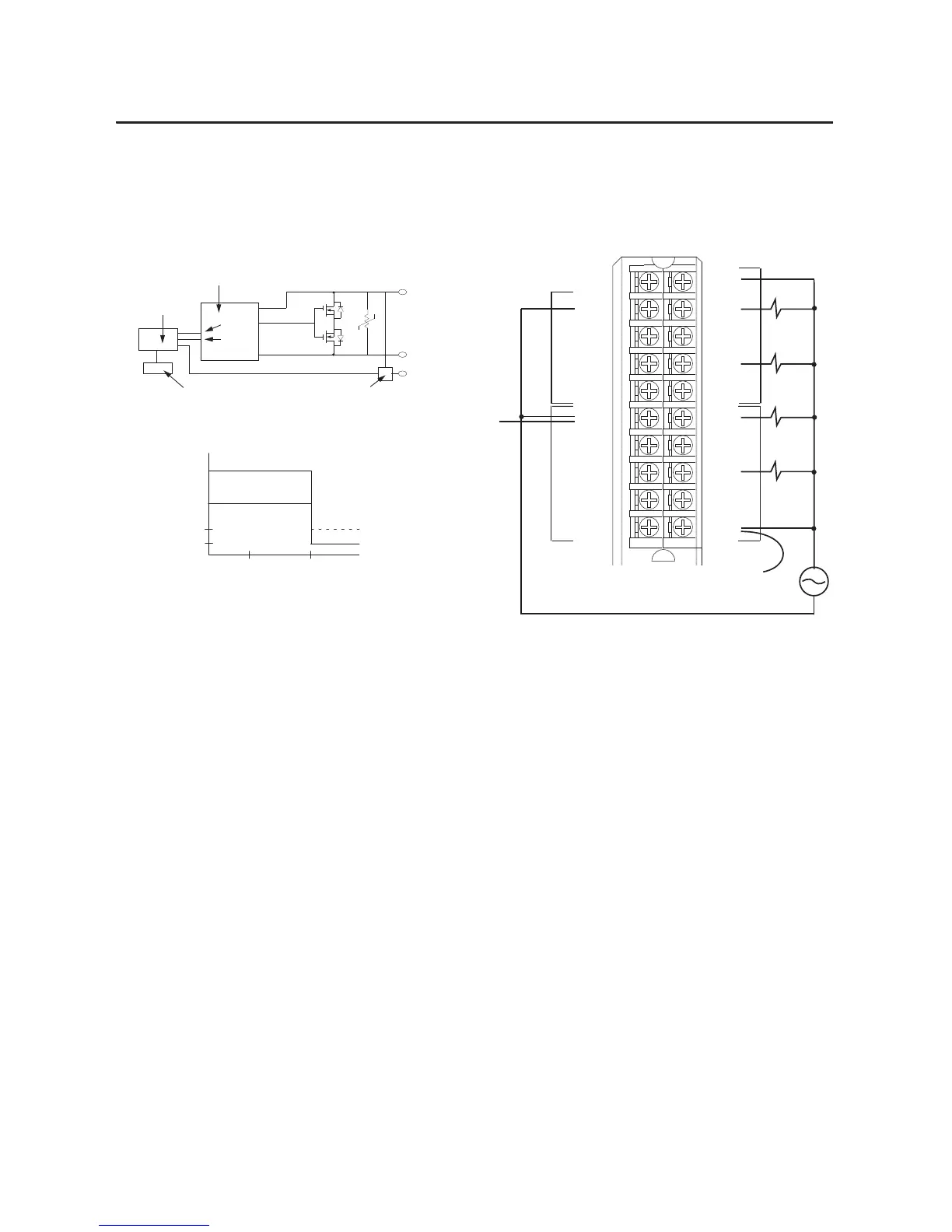
Chapter 8 Wiring Diagrams
1756-OA8D
ControlLogix AC (74...132V) diagnostic output module
12
34
5
6
7
8
910
11
12
1314
1516
1718
19
20
Daisy
Chain to
Other
RTBs
Daisy Chain to
Other RTBs
Group 0Group 0
Group 1Group 1
L2
1756-OA8D
Not Used
L1-0
L1-0
L1-0
L1-1
L1-1
L1-1
L1-1
L1-0
L1-1
L2-0
OUT-0
OUT-1
OUT-2
OUT-4
OUT-5
OUT-6
OUT-7
OUT-3
L2-1
L1
ControlLogix
Backplane
Interface
Diagnostic Control Block with Opto
and Transformer Isolation
Surge Current Chart
Continuous @ 30 °C (86 °F)
Current
Display
Simplified Schematic
OUT
L1
Continuous @ 60 °C (140 °F)
Time
Surge @ 30 °C (86 °F)
Surge @ 60 °C (140 °F)
Loss of Field Power
Short
Verify/
No Load
VAC
GATE
L2
500 mA
043 ms
1 A
5 A
8 A

Table of Contents

Other manuals for Allen-Bradley 1756-IB16

Related product manuals