EasyManua.ls Logo

Allen-Bradley 1756-IB16 - 1756-Ov16 E

Allen-Bradley 1756-IB16
258 pages
To Next Page IconTo Next Page
To Next Page IconTo Next Page
To Previous Page IconTo Previous Page
To Previous Page IconTo Previous Page
Loading...
172 Rockwell Automation Publication 1756-UM058G-EN-P - November 2012
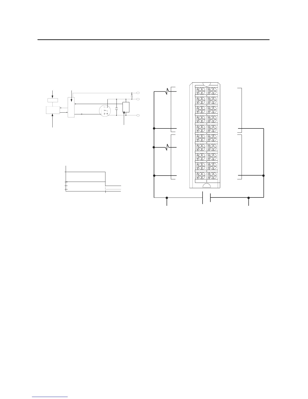
Chapter 8 Wiring Diagrams
1756-OV16E
ControlLogix DC (10...30V) electronically-fused, sinking output module
12
34
56
7
8
910
11
12
1314
1516
1718
19
20
+
Group 0Group 0
Group 1Group 1
DC COM
1756-OV16E
OUT-1
OUT-3
OUT-5
OUT-7
OUT-9
OUT-11
OUT-13
OUT-15
DC-0(+)
DC-1(+)
OUT-0
OUT-2
OUT-4
OUT-6
OUT-8
OUT-10
OUT-12
OUT-14
RTN OUT-0
RTN OUT-1
Daisy Chain to Other RTBs
Daisy Chain to Other RTB
ControlLogix
Backplane
Interface
Electronic Fuse
Circuitry
Continuous @ 60 °C (140 °C)
Display Optoisolation
RTN
OUT-0
OUT-0
DC-0(+)
Surge Current Chart
Simplified Schematic
Surge
Current
Time
010 ms
1 A
2 A

Table of Contents

Other manuals for Allen-Bradley 1756-IB16

Related product manuals