EasyManua.ls Logo

Allen-Bradley 1756-IB16 - 1756-Ob8

Allen-Bradley 1756-IB16
258 pages
To Next Page IconTo Next Page
To Next Page IconTo Next Page
To Previous Page IconTo Previous Page
To Previous Page IconTo Previous Page
Loading...
158 Rockwell Automation Publication 1756-UM058G-EN-P - November 2012
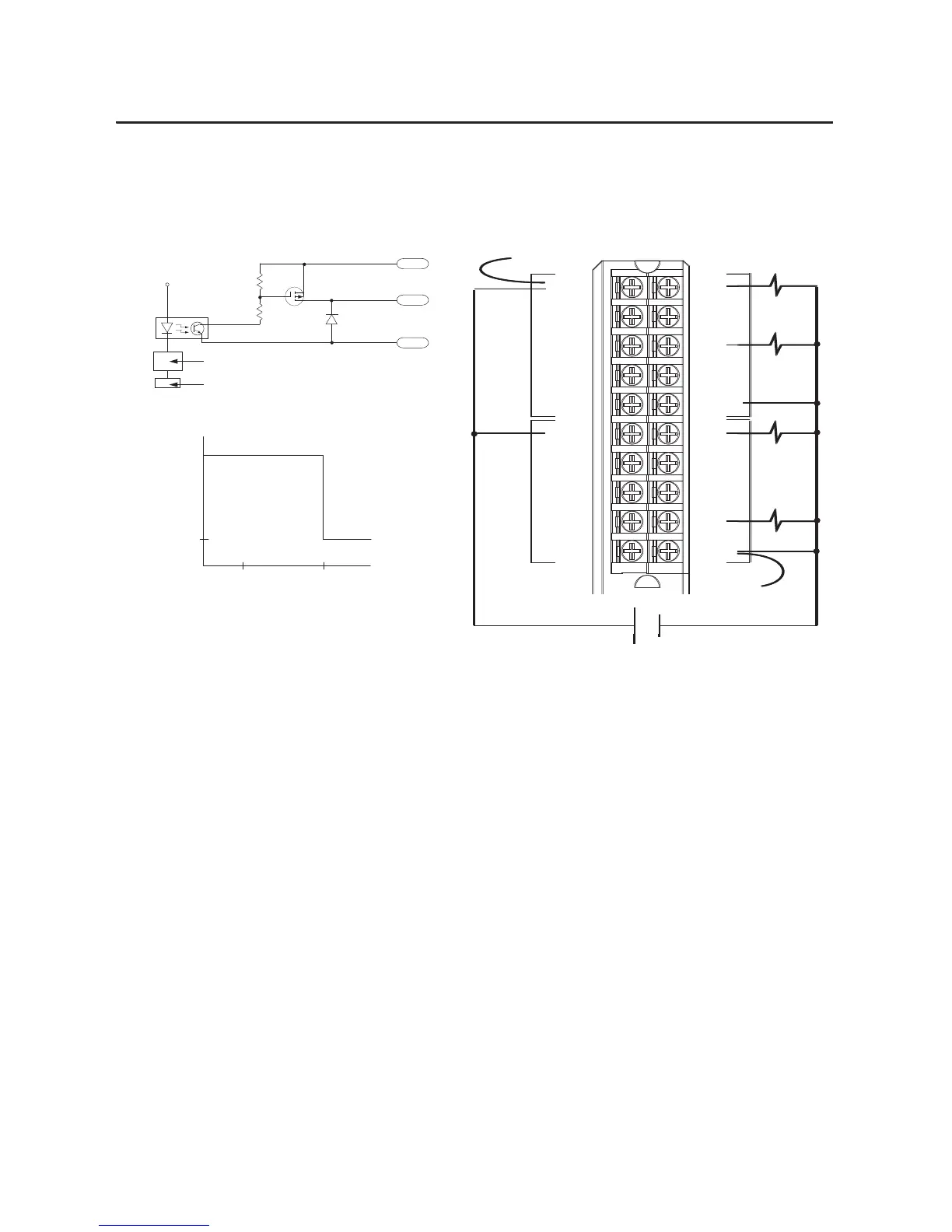
Chapter 8 Wiring Diagrams
1756-OB8
ControlLogix DC (10...30V) output module
12
34
5
6
7
8
910
11
12
1314
1516
1718
19
20
+
Group 0Group 0
Group 1Group 1
Daisy Chain to
Other RTBs
Daisy Chain to
Other RTBs
DC COM
1756-OB8
DC-0 (+)
DC-0 (+)
DC-0 (+)
DC-0 (+)
DC-1 (+)
DC-1 (+)
DC-1 (+)
DC-1 (+)
RTN OUT-0
RTN OUT-1
OUT-0
OUT-1
OUT-2
OUT-3
OUT-4
OUT-5
OUT-6
OUT-7
RTN OUT-0
RTN OUT-1
RTN
OUT-0
OUT-0
DC-0(+)
ControlLogix Backplane Interface
Display
Continuous @ 60 °C (140 °F)
Surge Current Chart
Simplified Schematic
Surge
+5V
Current
Time
0
10 ms
2 A
4 A

Table of Contents

Other manuals for Allen-Bradley 1756-IB16

Related product manuals