EasyManua.ls Logo

Allen-Bradley 1756-IB16 - 1756-Ob16 D

Allen-Bradley 1756-IB16
258 pages
To Next Page IconTo Next Page
To Next Page IconTo Next Page
To Previous Page IconTo Previous Page
To Previous Page IconTo Previous Page
Loading...
Rockwell Automation Publication 1756-UM058G-EN-P - November 2012 161
Wiring Diagrams Chapter 8
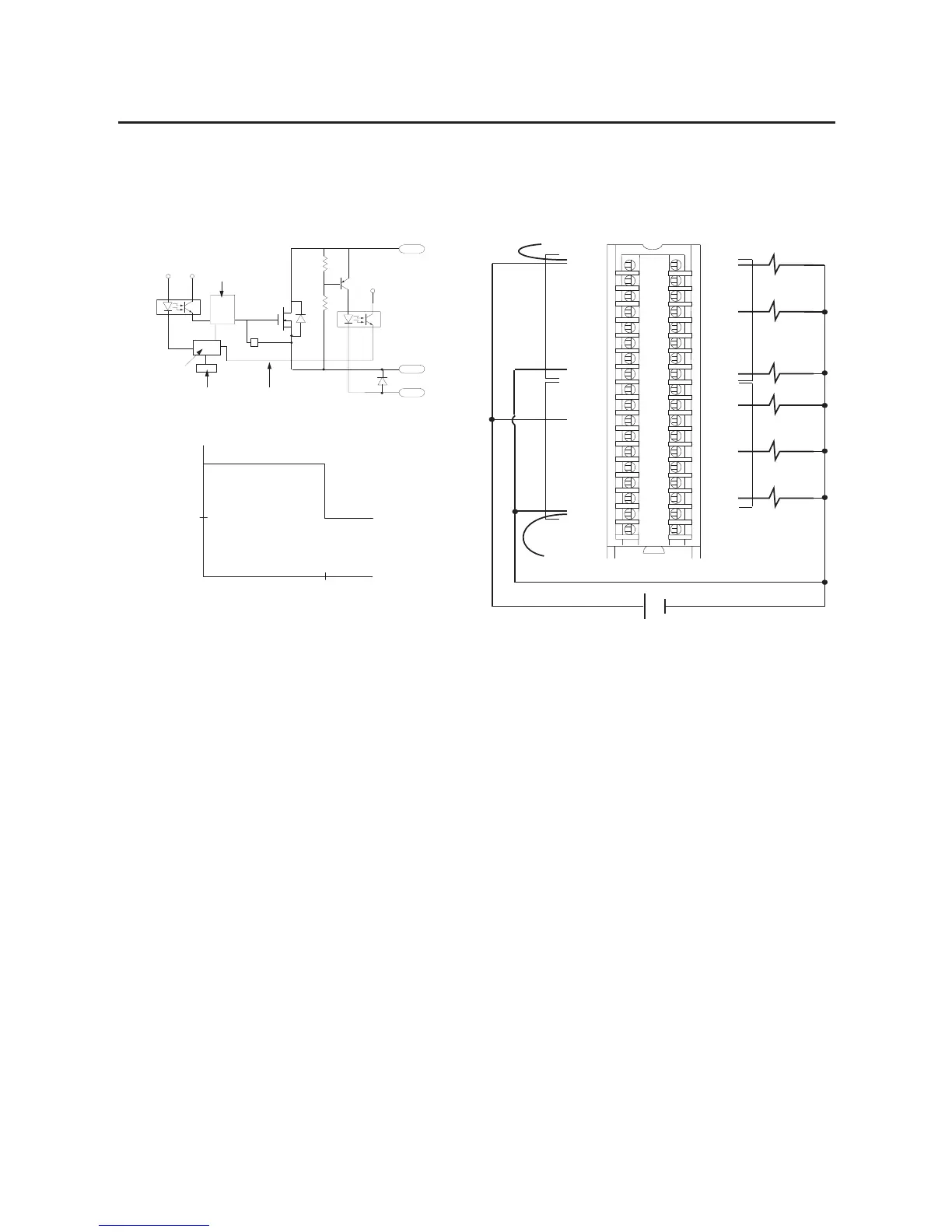
1756-OB16D
ControlLogix DC (19.2...30V) diagnostic output module
12
34
5
6
78
910
1112
1314
1516
1718
1920
2122
2324
2526
2728
2930
31
32
3334
3536
+
Daisy Chain
to Other RTBs
DC COM
0 puorG0 puorG
1 puorG1 puorG
1756-OB16D
+DC-0
+DC-0
+DC-0
+DC-0
+DC-1
+DC-0
+DC-0
+DC-0
GND-0
Not Used
+DC-1
+DC-1
+DC-1
+DC-1
+DC-1
+DC-1
GND-1
GND-1
OUT-0
OUT-1
OUT-2
OUT-3
OUT-8
OUT-4
OUT-5
OUT-6
OUT-7
Not Used
OUT-9
OUT-10
OUT-11
OUT-12
OUT-13
OUT-14
OUT-15
Not Used
Daisy Chain to Other RTBs
ControlLogix
Backplane
Interface
Display
+5V
Short Circuit
Detect
Optoisolation
+5V
+ DC
OUT
RTN
Output Verify/No Load
Surge Current Chart
Continuous @ 30 °C (86 °F)
Simplified schematic
Continuous @ 60 °C (140 °F)
Surge
+5V
Current
Time
0 10 ms
2 A
4 A

Table of Contents

Other manuals for Allen-Bradley 1756-IB16

Related product manuals