EasyManua.ls Logo

Allen-Bradley 1756-IB16IF - 1756-Ig16

Allen-Bradley 1756-IB16IF
258 pages
To Next Page IconTo Next Page
To Next Page IconTo Next Page
To Previous Page IconTo Previous Page
To Previous Page IconTo Previous Page
Loading...
148 Rockwell Automation Publication 1756-UM058G-EN-P - November 2012
Chapter 8 Wiring Diagrams
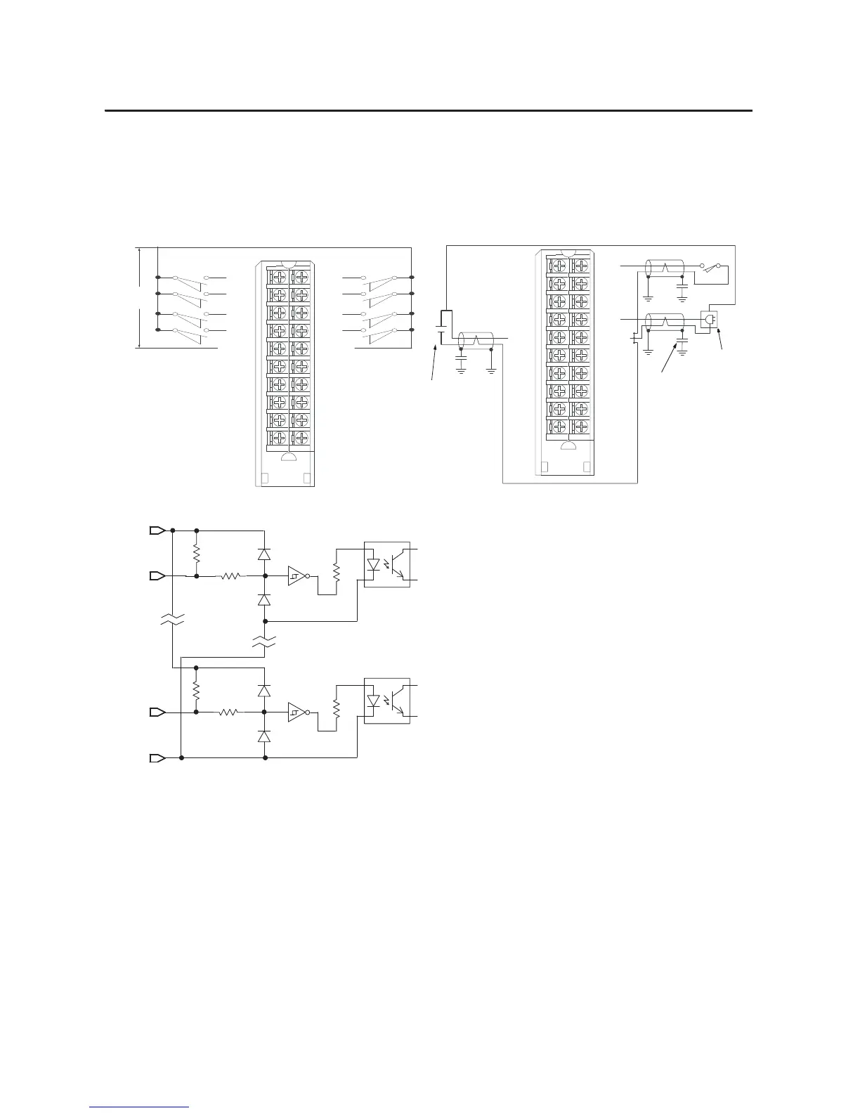
1756-IG16
ControlLogix TTL input module
1
3
5
7
9
19
17
15
13
11
2
4
6
8
10
20
18
16
14
12
IN-1
IN-3
IN-5
IN-7
DC-0(+)
IN-0
IN-2
IN-4
IN-6
DC COM 0
IN-9
IN-11
IN-13
IN-15
DC-1(+)
IN-8
IN-10
IN-12
IN-14
DC COM 1
5V DC
+ DC
– DC
1756-IG16
1
3
5
7
9
19
17
15
13
11
2
4
6
8
10
20
18
16
14
12
IN-1
IN-3
IN-5
IN-7
DC-0(+)
IN-0
IN-2
IN-4
IN-6
DC COM 0
IN-9
IN-11
IN-13
IN-15
DC-1(+)
IN-8
IN-10
IN-12
IN-14
DC COM 1
Capacitor
0.01
μF Typical
(See notes below.)
5V DC Powe
r
DC Power Wire
I/O Wire
+
I/O Wire
TTL Input
Devic
e
+
1756-IG16
+5 DC
IN
1.5 K
1 K
74HCT14
1.5 K
1 K
560
74HCT14
560
DC COM
IN
Standard Wiring CE Compliant Wiring
Simplified Schematic

Table of Contents

Other manuals for Allen-Bradley 1756-IB16IF

Related product manuals