EasyManua.ls Logo

Allen-Bradley 1756-IB16IF - 1756-Ob8 I

Allen-Bradley 1756-IB16IF
258 pages
To Next Page IconTo Next Page
To Next Page IconTo Next Page
To Previous Page IconTo Previous Page
To Previous Page IconTo Previous Page
Loading...
160 Rockwell Automation Publication 1756-UM058G-EN-P - November 2012
Chapter 8 Wiring Diagrams
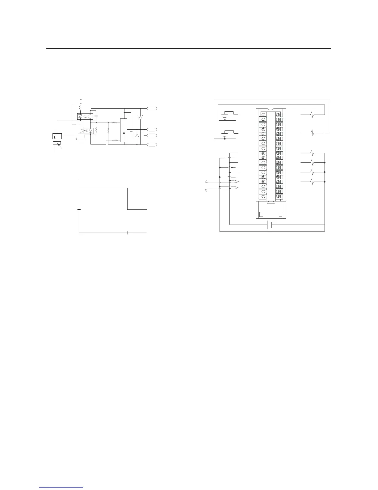
1756-OB8I
ControlLogix DC (10...30V) isolated output module
DC-0 (+)
RTN OUT-0
DC-1 (+)
RTN OUT-1
DC-2 (+)
RTN OUT-2
DC-3 (+)
RTN OUT-3
DC-4 (+)
RTN OUT-4
DC-5 (+)
RTN OUT-5
DC-6 (+)
RTN OUT-6
DC-7 (+)
RTN OUT-7
Not Used
Not Used
OUT-0
OUT-0
OUT-1
OUT-1
OUT-2
OUT-2
OUT-3
OUT-3
OUT-4
OUT-4
OUT-5
OUT-5
OUT-6
OUT-6
OUT-7
OUT-7
Not Used
Not Used
2
4
6
8
10
12
14
16
18
20
22
24
26
28
30
32
34
36
1
3
5
7
9
11
13
15
17
19
21
23
25
27
29
31
33
35
Daisy
Chain to
Other
RTBs
Daisy
Chain to
Other
RTBs
1756-OBI
Isolated
Wiring
Nonisolated
Wiring
Continuous @ 60 °C (140 °F)
ControlLogix Backplane Interface
Display
Output
Device
OUT-0
RTN
OUT-0
DC-0(+)
OUT-0
Surge Current Chart
Simplified Schematic
Surge
+5V
Current
Time
010 ms
2 A
4 A

Table of Contents

Other manuals for Allen-Bradley 1756-IB16IF

Related product manuals